Property
Beds
4
Full Baths
5
1/2 Baths
1
Year Built
2025
Sq.Footage
3,068
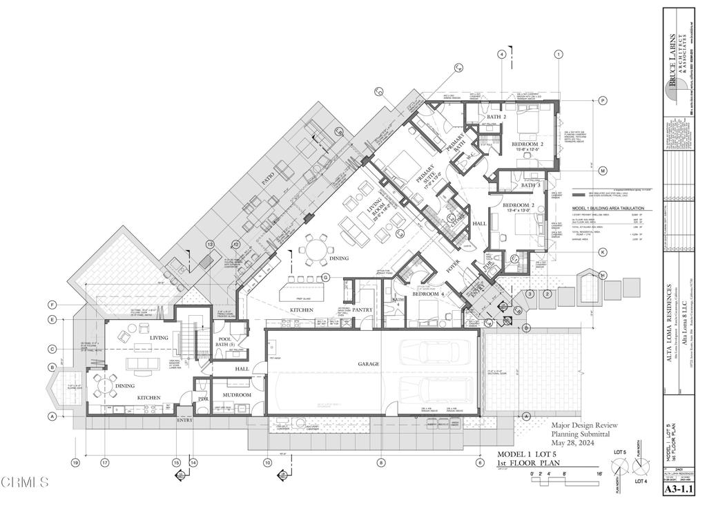
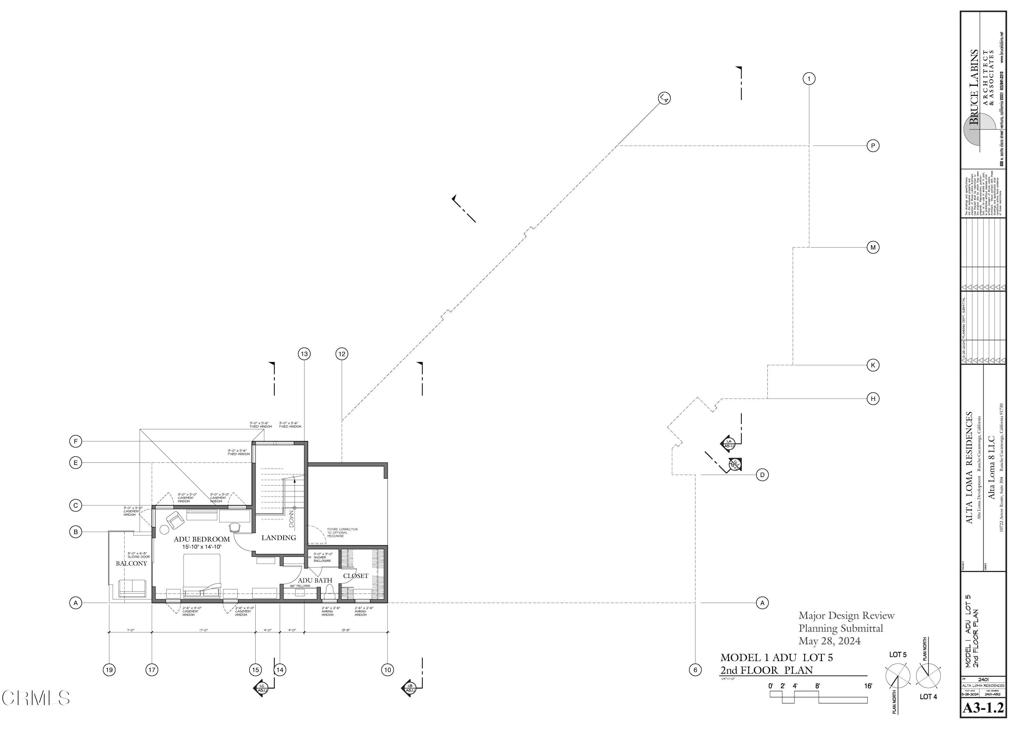
Located in beautiful Alta Loma, CA with panoramic city and mountain views, this brand new subdivision of eight luxury estates on half acres lots will be situated on a newly developed cul de sac. With four models to choose from, these big garage homes include features such as 20' x 50' RV garages with an option for a finished mezzanine, indoor/outdoor living with beautiful 500 SF covered California rooms, high ceilings, ensuite bathrooms for all bedrooms, and options for a swimming pool, private gated driveway, and 1188 SF ADU. Curbs and sidewalks with city sewer are included even though the site has access to an equestrian trail and miles of walkable nature trails directly from each property. This is in a coveted quiet Alta Loma neighborhood which boasts California distinguished elementary and middle schools as well as a nationally recognized high school. Imagine snowboarding and surfing the same day as you're only 45 min from both the beach and mountain resorts. Los Angeles night life and restaurants are under an hour away! See attached Site Plan, Renderings & Elevations, Floor Plans, and Key Features available for the model being placed on this specific lot (subject to adjustments as required via final approval process). Presales are under way! First homes will be available for move-in starting Q3 2026. This is one of two single story homes being built in this subdivision. Contact Listing Agent for details on how to reserve your home!
Features & Amenities
Interior
-
Other Interior Features
Master Downstairs
-
Total Bedrooms
4
-
Bathrooms
5
-
1/2 Bathrooms
1
-
Cooling YN
YES
-
Cooling
N/A
-
Fireplace YN
YES
-
Heating YN
YES
-
Pet friendly
N/A
Exterior
-
Garage
Yes
-
Garage spaces
6
-
Parking
Attached, RV Garage
-
Patio and Porch Features
Covered, Patio
-
Pool
Yes
-
Pool Features
None
-
View
City Lights
Area & Lot
-
Lot Features
Cul-De-Sac, Sprinklers In Front
-
Lot Size(acres)
0.4854
-
Property Type
Residential
-
Property Sub Type
Single Family Residence
-
Architectural Style
Custom
Price
-
Sales Price
$2,325,888
-
Sq. Footage
3, 068
-
Price/SqFt
$758
HOA
-
Association
NO
School District
-
Elementary School
Stork
-
Middle School
Alta Loma
-
High School
Los Osos
Property Features
-
Stories
1
-
Senior Community YN
NO
-
Sewer
Public Sewer
-
Tax Lot
4
-
Water Source
Public
Schedule a Showing
Showing scheduled successfully.
Mortgage calculator
Estimate your monthly mortgage payment, including the principal and interest, property taxes, and HOA. Adjust the values to generate a more accurate rate.
Your payment
Principal and Interest:
$
Property taxes:
$
HOA fees:
$
Total loan payment:
$
Total interest amount:
$
Location
County
San Bernardino
Elementary School
Stork
Middle School
Alta Loma
High School
Los Osos
Listing Courtesy of Janet Meier , eXp Realty of California Inc
RealHub Information is provided exclusively for consumers' personal, non-commercial use, and it may not be used for any purpose other than to identify prospective properties consumers may be interested in purchasing. All information deemed reliable but not guaranteed and should be independently verified. All properties are subject to prior sale, change or withdrawal. RealHub website owner shall not be responsible for any typographical errors, misinformation, misprints and shall be held totally harmless.

FOUNDER
LinaMirza
Call Lina today to schedule a private showing.

* Listings on this website come from the FMLS IDX Compilation and may be held by brokerage firms other than the owner of this website. The listing brokerage is identified in any listing details. Information is deemed reliable but is not guaranteed. If you believe any FMLS listing contains material that infringes your copyrighted work please click here to review our DMCA policy and learn how to submit a takedown request.© 2024 FMLS.
