Property
Beds
4
Full Baths
1
1/2 Baths
None
3/4 Baths
1
Year Built
1956
Sq.Footage
1,945
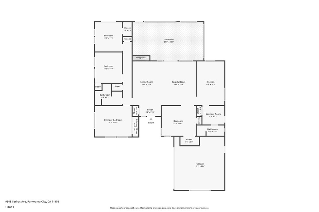
BACK ON THE MARKET! Welcome to a home that offers timeless charm, thoughtful upgrades, and a layout that works for every stage of life. Whether you're upsizing, downsizing, or simply right-sizing into your forever home, this 4-bedroom, 2-bathroom single-story residence checks all the boxes. Upgrades include stainless steel appliances with a Fisher & Paykel 5-burner cooktop, copper plumbing, new sewer piping under the house, a new pool pump, fresh exterior paint, and a spacious driveway with ample parking. Inside, you'll find warm hardwood floors, elegant crown molding, and a cozy fireplace that anchors the inviting living space. Skylights bring in beautiful natural light, while custom paint and wallpaper accents add just the right touch of personality. The flexible floor plan offers four generously sized bedrooms, including one currently used as a bright and creative art space. The sunroom has been reimagined as a game and lounge room, perfect for entertaining family and friends. Step outside to a private deck off the back bedroom, ideal for your morning coffee or a quiet evening unwind. A dedicated laundry area with access to the second bathroom leads directly to the side yard for convenient pool access. The backyard is a true retreat, featuring a sparkling pool, mature citrus trees, and a custom vinyl fence, perfect for relaxing afternoons or family get-togethers. Tucked into a peaceful neighborhood with easy access to the 5, 405, and 118 freeways, and just minutes from CSUN, shopping, and dining, this home offers the ideal blend of comfort, functionality, and long-term livability. Don’t miss this rare opportunity to settle into a home that’s ready to grow and evolve with you. Schedule your private showing today!
Features & Amenities
Interior
-
Other Interior Features
Ceiling Fan(s), Crown Molding, Eat-in Kitchen, Track Lighting, Walk-In Closet(s)
-
Total Bedrooms
4
-
Bathrooms
1
-
3/4 Bathrooms
1
-
Cooling YN
YES
-
Cooling
Central Air
-
Fireplace YN
YES
-
Heating YN
YES
-
Heating
Central
-
Main Level Bedrooms
4
-
Pet friendly
N/A
Exterior
-
Garage
Yes
-
Garage spaces
2
-
Construction Materials
Stucco, Vinyl Siding, Wood Siding
-
Other Exterior Features
Awning(s), Lighting, Rain Gutters
-
Parking
Attached, Driveway, Garage
-
Patio and Porch Features
Rear Porch, Deck, Front Porch
-
Pool
Yes
-
Pool Features
Private, In Ground
-
View
Neighborhood
Area & Lot
-
Lot Features
Back Yard, Front Yard, Landscaped
-
Lot Size(acres)
0.1771
-
Property Type
Residential
-
Property Sub Type
Single Family Residence
-
Architectural Style
Traditional
Price
-
Sales Price
$899,900
-
Sq. Footage
1, 945
-
Price/SqFt
$462
HOA
-
Association
NO
School District
-
Elementary School
N/A
-
Middle School
N/A
-
High School
N/A
Property Features
-
Stories
1
-
Foundation Details
Raised
-
Senior Community YN
NO
-
Sewer
Public Sewer
-
Tax Lot
19
-
Water Source
Public
Schedule a Showing
Showing scheduled successfully.
Mortgage calculator
Estimate your monthly mortgage payment, including the principal and interest, property taxes, and HOA. Adjust the values to generate a more accurate rate.
Your payment
Principal and Interest:
$
Property taxes:
$
HOA fees:
$
Total loan payment:
$
Total interest amount:
$
Location
County
Los Angeles
Elementary School
Middle School
High School
Listing Courtesy of Kristina Kawamoto , Realty Executives Homes
RealHub Information is provided exclusively for consumers' personal, non-commercial use, and it may not be used for any purpose other than to identify prospective properties consumers may be interested in purchasing. All information deemed reliable but not guaranteed and should be independently verified. All properties are subject to prior sale, change or withdrawal. RealHub website owner shall not be responsible for any typographical errors, misinformation, misprints and shall be held totally harmless.

FOUNDER
LinaMirza
Call Lina today to schedule a private showing.

* Listings on this website come from the FMLS IDX Compilation and may be held by brokerage firms other than the owner of this website. The listing brokerage is identified in any listing details. Information is deemed reliable but is not guaranteed. If you believe any FMLS listing contains material that infringes your copyrighted work please click here to review our DMCA policy and learn how to submit a takedown request.© 2024 FMLS.
