Property
Beds
None
Full Baths
None
1/2 Baths
None
Year Built
2005
Sq.Footage
N/A
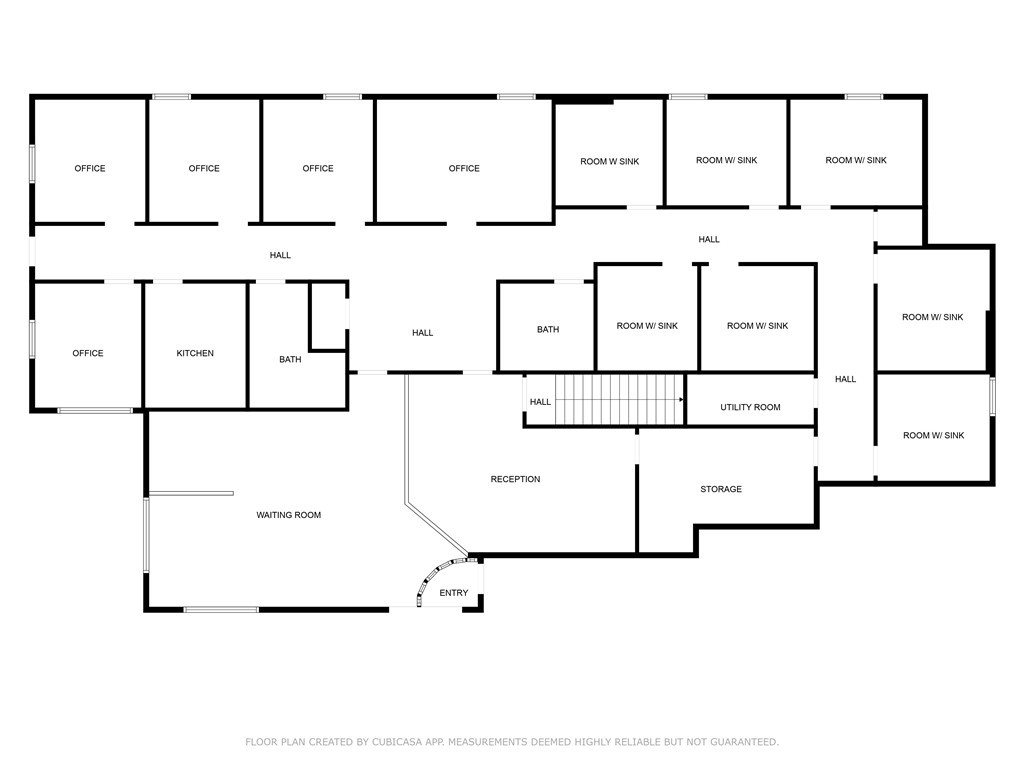
Prime medical office space located in a highly desirable Garden Villa complex. This former pediatric primary care office offers an ideal setup for healthcare providers. The 3,452 sq. ft. suite features a spacious waiting and reception area, seven exam rooms with sinks, five private offices, a kitchenette for staff, and two private restrooms. Additionally, there is a dedicated storage room to accommodate operational needs. The flexible floor plan can easily be adapted to suit a variety of medical or professional uses. With ample parking and a convenient location, this is an excellent opportunity for medical practitioners or businesses seeking a turnkey space in a professional, well maintained professional park.
Features & Amenities
Interior
-
Total Bedrooms
N/A
-
Bathrooms
N/A
-
Cooling YN
YES
-
Cooling
N/A
-
Heating YN
YES
-
Heating
Central
-
Pet friendly
N/A
Exterior
-
Garage
No
-
Pool
No
Area & Lot
-
Lot Features
Landscaped
-
Lot Size(acres)
4.81
-
Property Type
Commercial Lease
-
Property Sub Type
Office
Price
-
Sales Price
$5,454
-
Sq. Footage
N/A
-
Price/SqFt
N/A
HOA
-
Association
No
School District
-
Elementary School
N/A
-
Middle School
N/A
-
High School
N/A
Property Features
-
Stories
2
Schedule a Showing
Showing scheduled successfully.
Mortgage calculator
Estimate your monthly mortgage payment, including the principal and interest, property taxes, and HOA. Adjust the values to generate a more accurate rate.
Your payment
Principal and Interest:
$
Property taxes:
$
HOA fees:
$
Total loan payment:
$
Total interest amount:
$
Location
County
Butte
Elementary School
Middle School
High School
Listing Courtesy of Carrie Welch , Capital Rivers Commercial Inc
RealHub Information is provided exclusively for consumers' personal, non-commercial use, and it may not be used for any purpose other than to identify prospective properties consumers may be interested in purchasing. All information deemed reliable but not guaranteed and should be independently verified. All properties are subject to prior sale, change or withdrawal. RealHub website owner shall not be responsible for any typographical errors, misinformation, misprints and shall be held totally harmless.

FOUNDER
LinaMirza
Call Lina today to schedule a private showing.

* Listings on this website come from the FMLS IDX Compilation and may be held by brokerage firms other than the owner of this website. The listing brokerage is identified in any listing details. Information is deemed reliable but is not guaranteed. If you believe any FMLS listing contains material that infringes your copyrighted work please click here to review our DMCA policy and learn how to submit a takedown request.© 2024 FMLS.

Related Properties
