Property
Beds
4
Full Baths
1
1/2 Baths
None
3/4 Baths
2
Year Built
1973
Sq.Footage
2,602
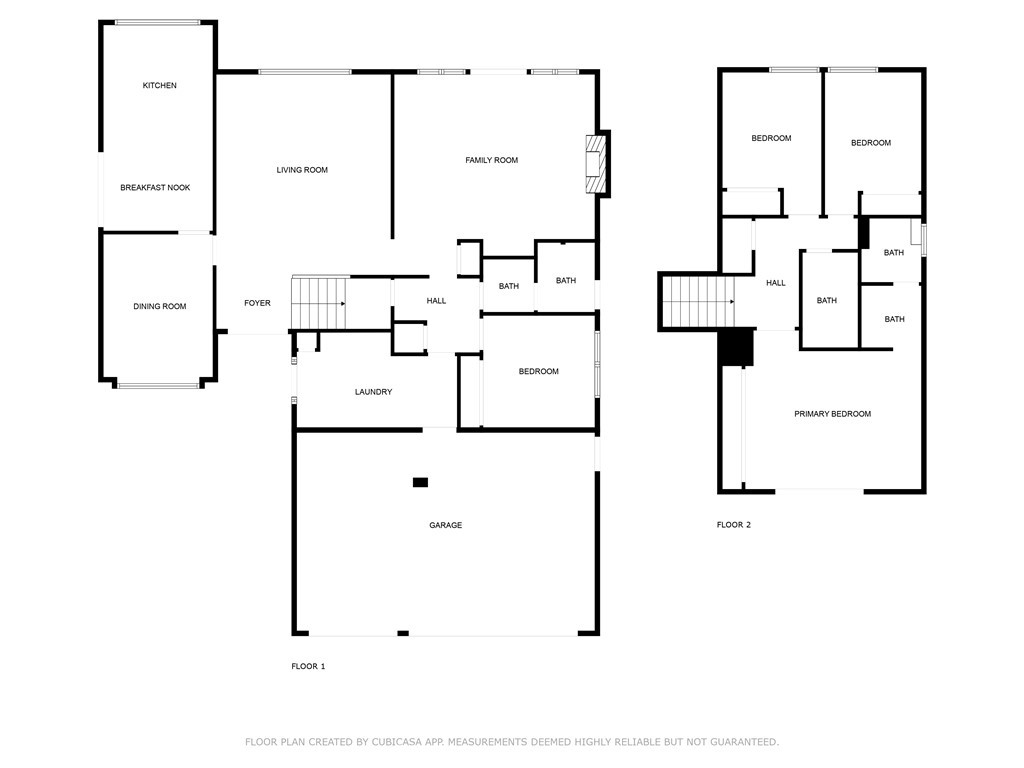
Welcome to 5451 E Willowick Circle, a spacious 4-bedroom, 3-bathroom home located in the highly desirable Westridge tract of Anaheim Hills. This residence offers a versatile floor plan with one bedroom conveniently situated on the main level, perfect for guests or a home office. The remodeled kitchen features granite countertops and ample cabinetry, opening seamlessly to the living and dining areas for easy entertaining. Upstairs, you’ll find three bedrooms, including a large primary suite with an attached bathroom, providing a comfortable retreat with plenty of space to unwind. Inside, the home is appointed with a blend of comfortable carpet and durable laminate flooring. Additional highlights include a separate laundry/mudroom, a 3-car garage, and low-maintenance turf landscaping in both the front and backyard. Enjoy stunning panoramic views from the property, creating a serene backdrop for everyday living. Situated in the sought-after Westridge community, this Anaheim Hills home combines thoughtful updates, curb appeal, and breathtaking views - making it a must-see.
Features & Amenities
Interior
-
Other Interior Features
Beamed Ceilings, Ceiling Fan(s), Eat-in Kitchen, High Ceilings, Pantry
-
Total Bedrooms
4
-
Bathrooms
1
-
3/4 Bathrooms
2
-
Cooling YN
YES
-
Cooling
Central Air
-
Fireplace YN
YES
-
Heating YN
YES
-
Heating
Central
-
Main Level Bedrooms
1
-
Pet friendly
No
Exterior
-
Garage
Yes
-
Garage spaces
3
-
Construction Materials
Stucco, Wood Siding
-
Other Exterior Features
Balcony, Rain Gutters
-
Parking
Attached, Direct Access, Driveway, Garage, Workshop in Garage
-
Patio and Porch Features
Covered
-
Pool
Yes
-
Pool Features
None
-
View
City Lights, Hills, Mountain(s), Neighborhood, Panoramic
Area & Lot
-
Lot Features
Front Yard
-
Lot Size(acres)
0.1848
-
Property Type
Residential Lease
-
Property Sub Type
Single Family Residence
-
Architectural Style
Contemporary
Price
-
Sales Price
$5,400
-
Sq. Footage
2, 602
-
Price/SqFt
$2
HOA
-
Association
YES
-
Association Fee
$97
-
Association Fee Frequency
Quarterly
-
Association Fee Includes
N/A
School District
-
Elementary School
Imperial
-
Middle School
Elrancho
-
High School
Canyon
Property Features
-
Stories
2
-
Senior Community YN
NO
-
Sewer
Public Sewer
-
Tax Lot
33
-
Water Source
Public
Schedule a Showing
Showing scheduled successfully.
Mortgage calculator
Estimate your monthly mortgage payment, including the principal and interest, property taxes, and HOA. Adjust the values to generate a more accurate rate.
Your payment
Principal and Interest:
$
Property taxes:
$
HOA fees:
$
Total loan payment:
$
Total interest amount:
$
Location
County
Orange
Elementary School
Imperial
Middle School
Elrancho
High School
Canyon
Listing Courtesy of Drew Brager , Paul Kott Realtors, Inc.
RealHub Information is provided exclusively for consumers' personal, non-commercial use, and it may not be used for any purpose other than to identify prospective properties consumers may be interested in purchasing. All information deemed reliable but not guaranteed and should be independently verified. All properties are subject to prior sale, change or withdrawal. RealHub website owner shall not be responsible for any typographical errors, misinformation, misprints and shall be held totally harmless.

FOUNDER
LinaMirza
Call Lina today to schedule a private showing.

* Listings on this website come from the FMLS IDX Compilation and may be held by brokerage firms other than the owner of this website. The listing brokerage is identified in any listing details. Information is deemed reliable but is not guaranteed. If you believe any FMLS listing contains material that infringes your copyrighted work please click here to review our DMCA policy and learn how to submit a takedown request.© 2024 FMLS.

Related Properties
