Property
Beds
4
Full Baths
3
1/2 Baths
None
Year Built
1974
Sq.Footage
2,500
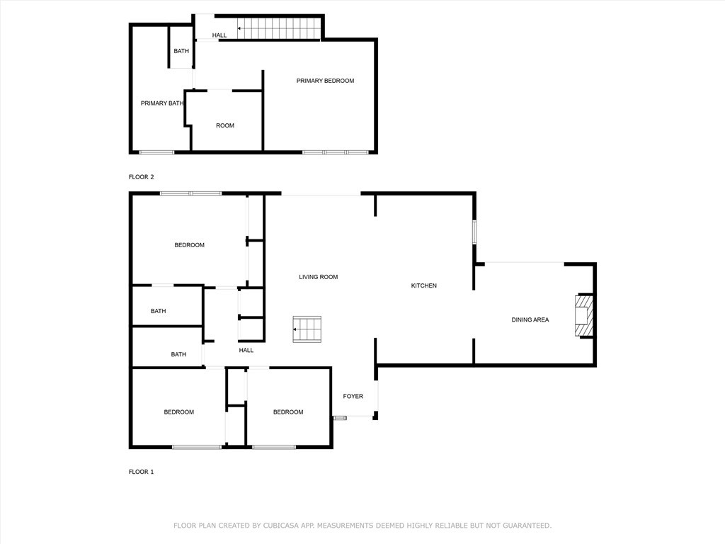
This stunning 4 bedroom, 3 bathroom Dual Master pool home is located on a completely flat half-acre lot at the end of a quiet cul-de-sac. Offering ample space for RV or boat parking, horses, and more. Upon entering the property, you'll be welcomed by vaulted ceilings, abundant natural light, and carefully curated designer finishes. The fully remodeled kitchen features custom oak cabinetry, a large island, stone backsplash, and high end stainless-steel appliances. The home offers two luxurious primary suites—one upstairs with a spa-like bathroom, walk-in closet, beverage center, and new washer and dryer. Another primary is downstairs with a floating double vanity and custom tiled shower. All bedrooms feature wide plank white oak flooring and generous closet space. Step into your resort-style backyard, complete with a newly plastered pool and spa, built-in gas fire pit, covered patio, BBQ island (now converted to natural gas), pool fence, and new wireless pool controller, lights, and pool sweep. The outdoor space has been extensively enhanced with stonework, landscape lighting, a new irrigation system with a smart sprinkler box and timer, new plants, tree removal, and borders around flower beds. Upgrades continue throughout the home with a New Paid Off solar system, custom closets, attic fan, soft water system, solar shades, EV chargers, 3 Tesla Powerwalls, and insurance-grade water flow monitoring (Flo system). With a three-car garage, sparkling pool, and access to award-winning schools, this one-of-a-kind property offers the ultimate in comfort, style, and functionality. This is California living at its finest!
Features & Amenities
Interior
-
Other Interior Features
Beamed Ceilings, Breakfast Bar, Built-in Features, Cathedral Ceiling(s), Open Floorplan, Recessed Lighting, Storage
-
Total Bedrooms
4
-
Bathrooms
3
-
Cooling YN
YES
-
Cooling
Central Air
-
Fireplace YN
YES
-
Heating YN
YES
-
Heating
Central
-
Main Level Bedrooms
3
-
Pet friendly
N/A
Exterior
-
Garage
Yes
-
Garage spaces
3
-
Parking
Attached
-
Pool
Yes
-
Pool Features
Private, In Ground
-
View
City Lights
Area & Lot
-
Lot Size(acres)
0.5101
-
Property Type
Residential
-
Property Sub Type
Single Family Residence
-
Architectural Style
Ranch
Price
-
Sales Price
$2,350,000
-
Sq. Footage
2, 500
-
Price/SqFt
$940
HOA
-
Association
NO
School District
-
Elementary School
Linda Vista
-
Middle School
Yorba Linda
-
High School
Esperanza
Property Features
-
Stories
2
-
Senior Community YN
NO
-
Sewer
Public Sewer
-
Tax Lot
8
-
Water Source
Public
Schedule a Showing
Showing scheduled successfully.
Mortgage calculator
Estimate your monthly mortgage payment, including the principal and interest, property taxes, and HOA. Adjust the values to generate a more accurate rate.
Your payment
Principal and Interest:
$
Property taxes:
$
HOA fees:
$
Total loan payment:
$
Total interest amount:
$
Location
County
Orange
Elementary School
Linda Vista
Middle School
Yorba Linda
High School
Esperanza
Listing Courtesy of Jeremy Aldridge , The Ridge Realty Group
RealHub Information is provided exclusively for consumers' personal, non-commercial use, and it may not be used for any purpose other than to identify prospective properties consumers may be interested in purchasing. All information deemed reliable but not guaranteed and should be independently verified. All properties are subject to prior sale, change or withdrawal. RealHub website owner shall not be responsible for any typographical errors, misinformation, misprints and shall be held totally harmless.

FOUNDER
LinaMirza
Call Lina today to schedule a private showing.

* Listings on this website come from the FMLS IDX Compilation and may be held by brokerage firms other than the owner of this website. The listing brokerage is identified in any listing details. Information is deemed reliable but is not guaranteed. If you believe any FMLS listing contains material that infringes your copyrighted work please click here to review our DMCA policy and learn how to submit a takedown request.© 2024 FMLS.
