Property
Beds
None
Full Baths
None
1/2 Baths
None
Year Built
1984
Sq.Footage
N/A
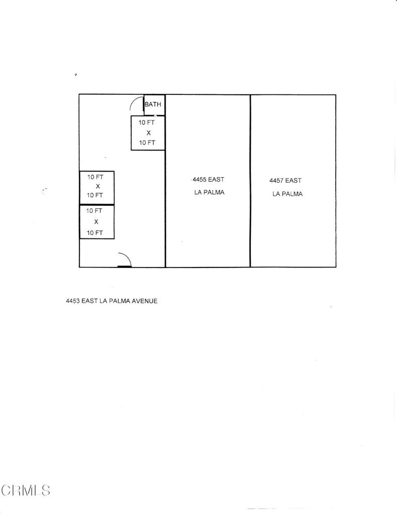
Prime location. Great Street frontage. Cross streets are Lakeview and La Palma Avenue. Anaheim Hills adjacent. Excellent visibility. 3 built out offices 10 feet x 10 feet, bathroom newly updated, Private restroom.
Features & Amenities
Interior
-
Total Bedrooms
N/A
-
Bathrooms
N/A
-
Cooling YN
YES
-
Cooling
N/A
-
Heating YN
YES
-
Pet friendly
N/A
Exterior
-
Garage
No
-
Other Exterior Features
Garden
-
Pool
No
Area & Lot
-
Lot Features
Garden
-
Property Type
Commercial Lease
-
Property Sub Type
Office
Price
-
Sales Price
$3,400
-
Sq. Footage
N/A
-
Price/SqFt
N/A
HOA
-
Association
No
School District
-
Elementary School
N/A
-
Middle School
N/A
-
High School
N/A
Property Features
-
Stories
1
-
Water Source
Public
Schedule a Showing
Showing scheduled successfully.
Mortgage calculator
Estimate your monthly mortgage payment, including the principal and interest, property taxes, and HOA. Adjust the values to generate a more accurate rate.
Your payment
Principal and Interest:
$
Property taxes:
$
HOA fees:
$
Total loan payment:
$
Total interest amount:
$
Location
County
Orange
Elementary School
Middle School
High School
Listing Courtesy of Nicole Panos , Meridian Capital Realty
RealHub Information is provided exclusively for consumers' personal, non-commercial use, and it may not be used for any purpose other than to identify prospective properties consumers may be interested in purchasing. All information deemed reliable but not guaranteed and should be independently verified. All properties are subject to prior sale, change or withdrawal. RealHub website owner shall not be responsible for any typographical errors, misinformation, misprints and shall be held totally harmless.

FOUNDER
LinaMirza
Call Lina today to schedule a private showing.

* Listings on this website come from the FMLS IDX Compilation and may be held by brokerage firms other than the owner of this website. The listing brokerage is identified in any listing details. Information is deemed reliable but is not guaranteed. If you believe any FMLS listing contains material that infringes your copyrighted work please click here to review our DMCA policy and learn how to submit a takedown request.© 2024 FMLS.

Related Properties
