Property
Beds
None
Full Baths
None
1/2 Baths
None
Year Built
None
Lot size
0.8854 acres
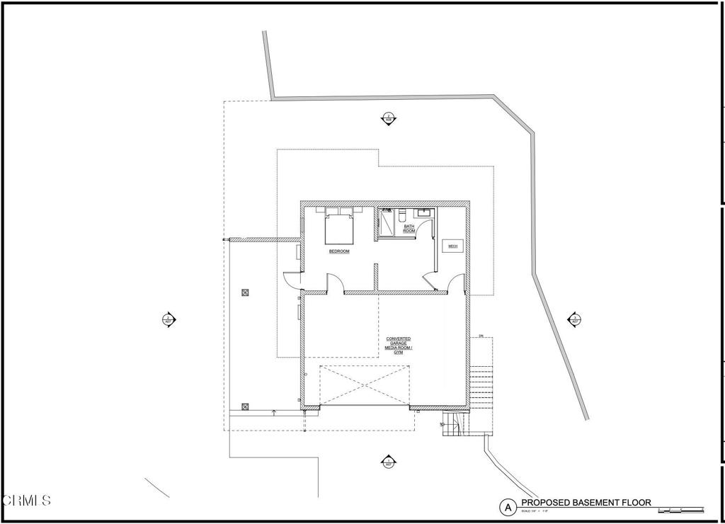
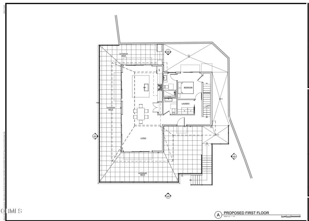
Complete RTI plans with permits paid for! Now is your chance to skip the plan check line and break ground on this modern Malibu home with ocean views on almost a full acre of land! Plans are for a 3-story home offering almost 2,000sf of living space including a 546 SF garage, and with 2,367 SF of total deck space. Just 10 minutes from PCH, the location is very convenient with easy access to Pepperdine and all of Malibu's shops. Enhancements to the site include retaining walls and a 1,500 gallon septic tank both in place and approved. The water line and electric utilities are already on site. Per the LA County Planner, potential add-ons include a 900-1,200 standalone guesthouse. This is truly a great opportunity for a homeowner looking to build their dream home or for a developer who plans to resell. The owner has a full construction bid for $950k which he is happy to share. Start your next project today!
Features & Amenities
Interior
-
Total Bedrooms
N/A
-
Bathrooms
N/A
-
Pet friendly
N/A
Exterior
-
Garage
No
-
Pool
No
-
View
Mountain(s), Ocean
Area & Lot
-
Lot Size(acres)
0.8854
-
Property Type
Land
Price
-
Sales Price
$599,000
-
Sq. Footage
N/A
-
Price/SqFt
N/A
HOA
-
Association
No
School District
-
Elementary School
N/A
-
Middle School
N/A
-
High School
N/A
Property Features
-
Senior Community YN
NO
-
Water Source
Public
Schedule a Showing
Showing scheduled successfully.
Mortgage calculator
Estimate your monthly mortgage payment, including the principal and interest, property taxes, and HOA. Adjust the values to generate a more accurate rate.
Your payment
Principal and Interest:
$
Property taxes:
$
HOA fees:
$
Total loan payment:
$
Total interest amount:
$
Location
County
Los Angeles
Elementary School
Middle School
High School
Listing Courtesy of Yonathan Canete Baltazar , COMPASS
RealHub Information is provided exclusively for consumers' personal, non-commercial use, and it may not be used for any purpose other than to identify prospective properties consumers may be interested in purchasing. All information deemed reliable but not guaranteed and should be independently verified. All properties are subject to prior sale, change or withdrawal. RealHub website owner shall not be responsible for any typographical errors, misinformation, misprints and shall be held totally harmless.

FOUNDER
LinaMirza
Call Lina today to schedule a private showing.

* Listings on this website come from the FMLS IDX Compilation and may be held by brokerage firms other than the owner of this website. The listing brokerage is identified in any listing details. Information is deemed reliable but is not guaranteed. If you believe any FMLS listing contains material that infringes your copyrighted work please click here to review our DMCA policy and learn how to submit a takedown request.© 2024 FMLS.
