Property
Beds
5
Full Baths
4
1/2 Baths
1
Year Built
1987
Sq.Footage
4,574
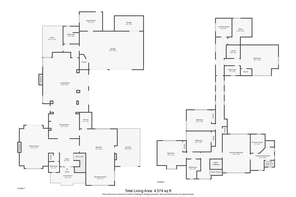
Welcome to 23181 Via Celeste, a stunning modern farmhouse estate that blends timeless character with the best of today’s upgrades. Perfectly positioned behind the gates of Coto de Caza, this 5-bedroom, 4.5-bath home plus office, bonus room, and guest suite offers the perfect mix of style, function, and resort-style living. Step inside to bright, open living spaces with rich hardwood floors, crown molding, and designer lighting throughout. The chef’s kitchen features coffered ceilings, quartz countertops, a massive island with bar seating, top-of-the-line stainless-steel appliances, and a walk-in butler’s pantry—ideal for entertaining or everyday ease. Enjoy multiple spaces to gather and dine. A warm and inviting formal dining room showcases brick floors and a matching fireplace for timeless charm, while the adjoining family room centers around a custom brick fireplace and built-in entertainment wall. Upstairs, the primary suite impresses with vaulted ceilings, a spa-inspired bath featuring a freestanding soaking tub, dual vanities, quartz counters, and a glass walk-in shower. Four additional bedrooms complete the upper level, including one with its own ensuite bath, along with a spacious office and convenient upstairs laundry. As an super bonus, this home also hosts an additional room off the garage downstairs, that currently serves as a 6th bedroom/guest quarters. Step outside to your private resort. The backyard boasts a sparkling pool with water slide, spa, grotto, LED lighting, and outdoor shower. A covered outdoor kitchen with built-in BBQ, seating area, and fire pit sets the stage for unforgettable gatherings. A large balcony with fireplace and gas heater is perfect for cozy evenings, while a gated courtyard with built-in basketball hoop adds a playful touch for all ages. Additional highlights include paid solar, whole-house water filtration, 220V EV plug, extra storage room, and a long driveway with ample parking. Every inch of this property delivers modern luxury, comfort, and that unmistakable Coto lifestyle.
Features & Amenities
Interior
-
Other Interior Features
Beamed Ceilings
-
Total Bedrooms
5
-
Bathrooms
4
-
1/2 Bathrooms
1
-
Cooling YN
YES
-
Cooling
Central Air
-
Fireplace YN
YES
-
Heating YN
YES
-
Heating
Central
-
Pet friendly
N/A
Exterior
-
Garage
Yes
-
Garage spaces
3
-
Parking
Attached
-
Pool
Yes
-
Pool Features
Private, In Ground, Association
-
View
Hills, Neighborhood
Area & Lot
-
Lot Size(acres)
0.2918
-
Property Type
Residential
-
Property Sub Type
Single Family Residence
Price
-
Sales Price
$3,275,000
-
Sq. Footage
4, 574
-
Price/SqFt
$716
HOA
-
Association
YES
-
Association Fee
$353
-
Association Fee Frequency
Monthly
-
Association Fee Includes
N/A
School District
-
Elementary School
N/A
-
Middle School
N/A
-
High School
N/A
Property Features
-
Stories
2
-
Association Amenities
Clubhouse, Dog Park, Picnic Area, Pool, Spa/Hot Tub, Security, Tennis Court(s), Trail(s)
-
Senior Community YN
NO
-
Sewer
Public Sewer
-
Tax Lot
9
-
Water Source
Public
Schedule a Showing
Showing scheduled successfully.
Mortgage calculator
Estimate your monthly mortgage payment, including the principal and interest, property taxes, and HOA. Adjust the values to generate a more accurate rate.
Your payment
Principal and Interest:
$
Property taxes:
$
HOA fees:
$
Total loan payment:
$
Total interest amount:
$
Location
County
Orange
Elementary School
Middle School
High School
Listing Courtesy of Brandi Cumin , Luxre Realty, Inc.
RealHub Information is provided exclusively for consumers' personal, non-commercial use, and it may not be used for any purpose other than to identify prospective properties consumers may be interested in purchasing. All information deemed reliable but not guaranteed and should be independently verified. All properties are subject to prior sale, change or withdrawal. RealHub website owner shall not be responsible for any typographical errors, misinformation, misprints and shall be held totally harmless.

FOUNDER
LinaMirza
Call Lina today to schedule a private showing.

* Listings on this website come from the FMLS IDX Compilation and may be held by brokerage firms other than the owner of this website. The listing brokerage is identified in any listing details. Information is deemed reliable but is not guaranteed. If you believe any FMLS listing contains material that infringes your copyrighted work please click here to review our DMCA policy and learn how to submit a takedown request.© 2024 FMLS.
