Property
Beds
4
Full Baths
4
1/2 Baths
None
Year Built
2026
Sq.Footage
3,017
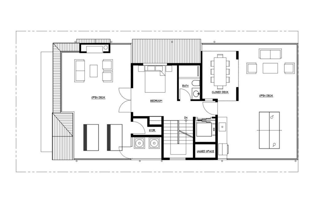
READY TO BUILD - APPROVED PLANS – RTI Project Rare opportunity to build a custom residence on the iconic Balboa Peninsula Point. This prime location is just steps from the beach and within walking distance of the Balboa “Fun Zone,” shops, restaurants, Newport Bay, Balboa Pier, Ferry, and Village. Approved plans showcase a stunning 3-level design offering 3,017 sq ft., 4 bedrooms + office, and 4.5 baths. The main level features a chef’s kitchen with oversized island, bar seating, and an airy living area that opens to a front patio through floor-to-ceiling glass doors—perfect for indoor/outdoor living. The second level includes a private primary suite with spa bath, soaking tub, walk-in shower, dual vanities, balcony, and large walk-in closet. Two additional en-suite bedrooms complete this floor. The third level offers another bedroom and bath, plus direct access to an expansive 1,100+ sq ft. rooftop deck with both covered and open lounging areas—an entertainer’s dream. Additional highlights include an oversized 2-car garage with EV charging capabilities, ample storage, and a carport for a third vehicle. Permits & plans anticipated in December 2025. A rare chance to customize and create your dream home in one of Southern California’s most sought-after coastal communities
Features & Amenities
Interior
-
Other Interior Features
High Ceilings, Open Floorplan, Pantry, Entrance Foyer
-
Total Bedrooms
4
-
Bathrooms
4
-
Cooling YN
YES
-
Cooling
Central Air
-
Fireplace YN
YES
-
Heating YN
YES
-
Heating
Central
-
Main Level Bedrooms
3
-
Pet friendly
N/A
Exterior
-
Garage
Yes
-
Garage spaces
3
-
Other Exterior Features
Balcony
-
Parking
Attached, Carport, Garage
-
Pool
Yes
-
Pool Features
None
-
View
Neighborhood
Area & Lot
-
Lot Features
Front Yard
-
Lot Size(acres)
0.0562
-
Property Type
Residential
-
Property Sub Type
Single Family Residence
Price
-
Sales Price
$4,150,000
-
Sq. Footage
3, 017
-
Price/SqFt
$1,375
HOA
-
Association
NO
School District
-
Elementary School
N/A
-
Middle School
N/A
-
High School
N/A
Property Features
-
Stories
2
-
Senior Community YN
NO
-
Sewer
Public Sewer
-
Tax Lot
22
-
Water Source
Public
Schedule a Showing
Showing scheduled successfully.
Mortgage calculator
Estimate your monthly mortgage payment, including the principal and interest, property taxes, and HOA. Adjust the values to generate a more accurate rate.
Your payment
Principal and Interest:
$
Property taxes:
$
HOA fees:
$
Total loan payment:
$
Total interest amount:
$
Location
County
Orange
Elementary School
Middle School
High School
Listing Courtesy of Sam Kilic , Mulberry Real Estate Inc
RealHub Information is provided exclusively for consumers' personal, non-commercial use, and it may not be used for any purpose other than to identify prospective properties consumers may be interested in purchasing. All information deemed reliable but not guaranteed and should be independently verified. All properties are subject to prior sale, change or withdrawal. RealHub website owner shall not be responsible for any typographical errors, misinformation, misprints and shall be held totally harmless.

FOUNDER
LinaMirza
Call Lina today to schedule a private showing.

* Listings on this website come from the FMLS IDX Compilation and may be held by brokerage firms other than the owner of this website. The listing brokerage is identified in any listing details. Information is deemed reliable but is not guaranteed. If you believe any FMLS listing contains material that infringes your copyrighted work please click here to review our DMCA policy and learn how to submit a takedown request.© 2024 FMLS.
