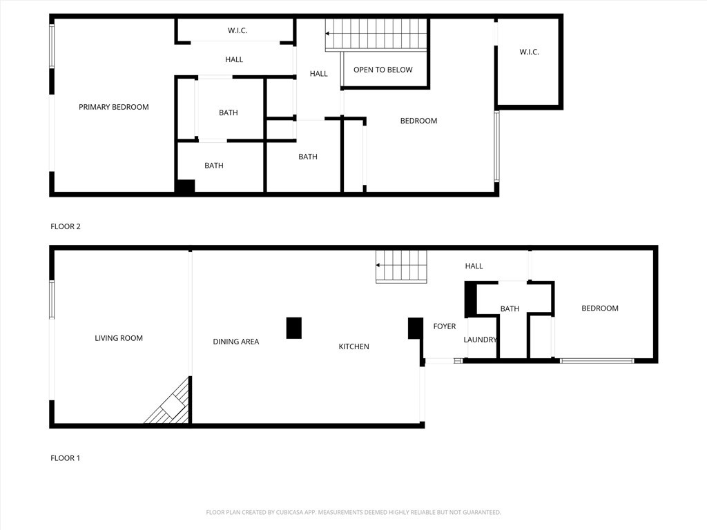
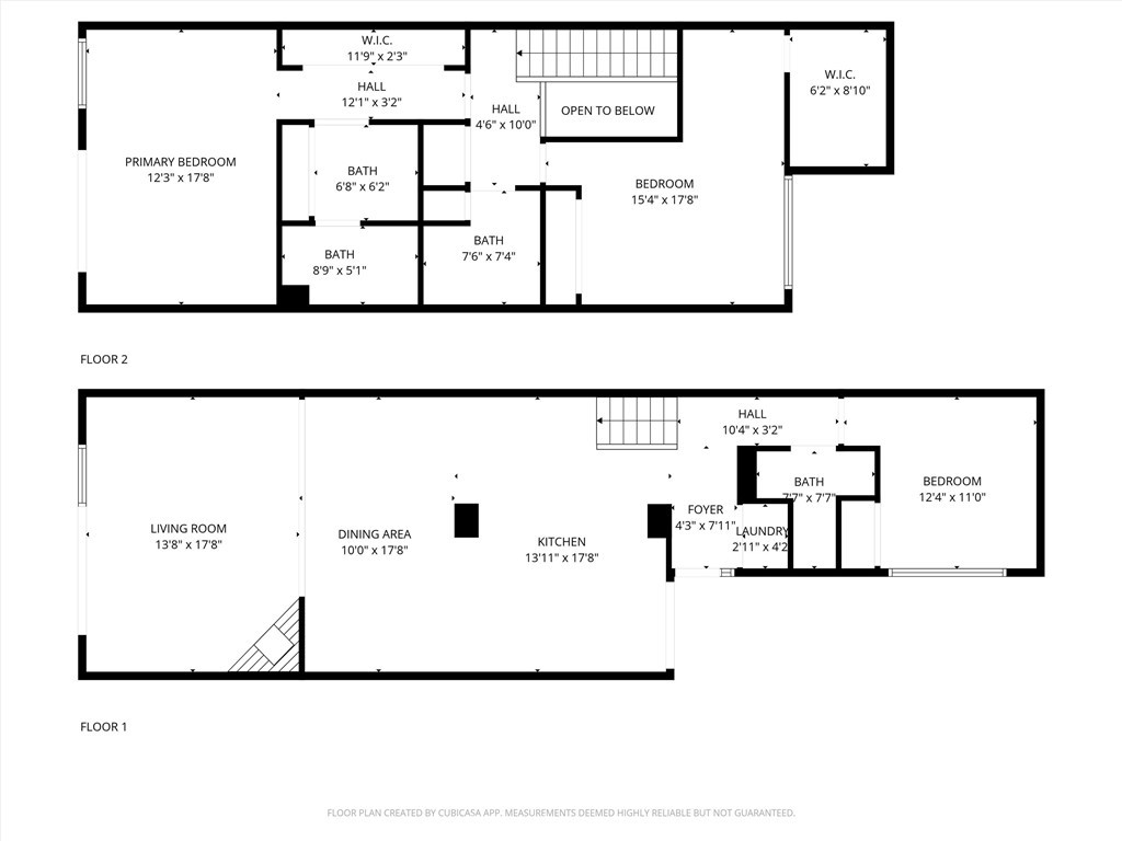
Property
Beds
3
Full Baths
1
1/2 Baths
None
3/4 Baths
2
Year Built
1973
Sq.Footage
1,818
Wake up to peaceful lagoon views every morning in this beautifully reimagined Seagate Davenport model, perfectly positioned with coveted southern exposure for all-day sun and breathtaking sunsets. The main level was completely reconfigured for open-concept living. The sleek, updated kitchen features newer appliances, custom lighting, and flows seamlessly to the dining and living areas—anchored by a striking white-stone fireplace with a tiled hearth. Expansive patio doors lead to a tiled waterfront patio, perfect for al fresco dining, lounging, or entertaining against the sparkling backdrop of the lagoon. Upstairs, the spacious primary suite is a true retreat with soaring ceilings, a private balcony, and a wall of windows framing uninterrupted water views. The remodeled primary bath is both stylish and serene. The second upstairs bedroom is flexible—ideal as a guest room, office, or even dividable for kids—and a bonus closet adds extra storage or a cozy play space. The downstairs bedroom and full bath provide convenience for guests, while the smartly hidden laundry area sits behind a chic sliding barn door. This is a true smart home: adjust lighting, blinds, and climate control with Alexa. Solar-powered blinds automatically track the sun, creating effortless comfort and efficiency. Enjoy resort-style living in Huntington Harbour’s sought-after Seagate community, featuring two pools, a spa, two clubhouses, and tennis and pickleball courts. Boat docks are available for rent, and you’re minutes from the beach, harbor, dining, and coastal trails. Experience waterfront living at its finest—schedule your tour today.
Features & Amenities
Interior
-
Other Interior Features
Open Floorplan, Pantry, Recessed Lighting
-
Total Bedrooms
3
-
Bathrooms
1
-
3/4 Bathrooms
2
-
Cooling YN
YES
-
Cooling
Central Air
-
Fireplace YN
YES
-
Heating YN
YES
-
Heating
Central
-
Main Level Bedrooms
1
-
Pet friendly
N/A
Exterior
-
Garage
Yes
-
Garage spaces
2
-
Other Exterior Features
Balcony, Dock
-
Parking
Garage, Guest
-
Pool
Yes
-
Pool Features
Community, Association
-
View
Bay, Water
Area & Lot
-
Lot Size(acres)
0.0347
-
Property Type
Residential
-
Property Sub Type
Townhouse
-
Architectural Style
CapeCod
Price
-
Sales Price
$1,525,000
-
Sq. Footage
1, 818
-
Price/SqFt
$838
HOA
-
Association
YES
-
Association Fee
$759
-
Association Fee Frequency
Monthly
-
Association Fee Includes
N/A
School District
-
Elementary School
Harbor View
-
Middle School
Marine View
-
High School
Marina
Property Features
-
Stories
2
-
Association Amenities
Clubhouse, Maintenance Grounds, Barbecue, Pool, Spa/Hot Tub, Tennis Court(s), Trash, Water, Boat Dock
-
Senior Community YN
NO
-
Sewer
Public Sewer
-
Tax Lot
177
-
Water Source
Public
Schedule a Showing
Showing scheduled successfully.
Mortgage calculator
Estimate your monthly mortgage payment, including the principal and interest, property taxes, and HOA. Adjust the values to generate a more accurate rate.
Your payment
Principal and Interest:
$
Property taxes:
$
HOA fees:
$
Total loan payment:
$
Total interest amount:
$
Location
County
Orange
Elementary School
Harbor View
Middle School
Marine View
High School
Marina
Listing Courtesy of Dusty Mulhearn , Real Broker
RealHub Information is provided exclusively for consumers' personal, non-commercial use, and it may not be used for any purpose other than to identify prospective properties consumers may be interested in purchasing. All information deemed reliable but not guaranteed and should be independently verified. All properties are subject to prior sale, change or withdrawal. RealHub website owner shall not be responsible for any typographical errors, misinformation, misprints and shall be held totally harmless.

FOUNDER
LinaMirza
Call Lina today to schedule a private showing.

* Listings on this website come from the FMLS IDX Compilation and may be held by brokerage firms other than the owner of this website. The listing brokerage is identified in any listing details. Information is deemed reliable but is not guaranteed. If you believe any FMLS listing contains material that infringes your copyrighted work please click here to review our DMCA policy and learn how to submit a takedown request.© 2024 FMLS.
