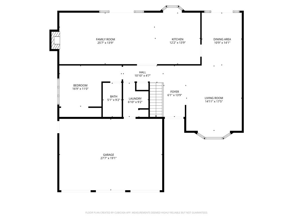
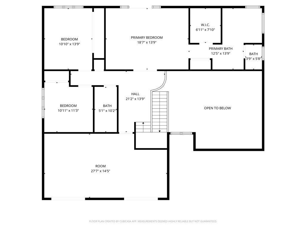
Property
Beds
4
Full Baths
2
1/2 Baths
None
3/4 Baths
1
Year Built
1969
Sq.Footage
3,000
Less than a mile from the sand and surf—yet peacefully removed from the bustle of downtown—this 4-bedroom residence in Huntington Beach’s prestigious Upper Seacliff neighborhood offers the perfect balance of luxury, comfort, and coastal living, with no HOA. Inside, soaring vaulted ceilings and expansive windows fill the home with natural light. The flexible floor plan includes a main-level bedroom and full bath, while the massive upstairs bonus room with built-in cabinetry can serve as a media lounge, fitness studio, playroom, or even additional bedrooms. The primary suite boasts vaulted ceilings, dual closets (including a walk-in), and a private balcony where you can savor ocean breezes or watch the Blue Angels during the annual Airshow. Step outside to your private oasis with a sparkling pool and spa (solar-heated), a built-in BBQ, and multiple spaces for lounging and entertaining under the California sun. The home also features fully paid solar panels, newer blown-in insulation in the walls and attic for year-round efficiency, indoor laundry, and a rare 3-car garage for convenience and comfort. Located just down the street from The Huntington Club—offering world-class golf, tennis, and pickleball—and served by top-rated Seacliff Elementary and Huntington Beach High School, this residence offers both prestige and peace of mind. Situated on a cul-de-sac and moments from the beach, Pacific City, and the pier, this is a rare chance to embrace the Southern California lifestyle at its absolute best.
Features & Amenities
Interior
-
Other Interior Features
Ceiling Fan(s), Eat-in Kitchen, Granite Counters, High Ceilings, Open Floorplan, Walk-In Closet(s), Master Downstairs
-
Total Bedrooms
4
-
Bathrooms
2
-
3/4 Bathrooms
1
-
Cooling YN
NO
-
Cooling
None
-
Fireplace YN
YES
-
Heating YN
YES
-
Heating
Central
-
Main Level Bedrooms
1
-
Pet friendly
N/A
Exterior
-
Garage
Yes
-
Garage spaces
3
-
Other Exterior Features
Balcony
-
Parking
Attached, Direct Access, Driveway, Garage
-
Pool
Yes
-
Pool Features
Private, Heated, In Ground
-
View
None
Area & Lot
-
Lot Features
Cul-De-Sac, Rectangular Lot
-
Lot Size(acres)
0.1537
-
Property Type
Residential
-
Property Sub Type
Single Family Residence
Price
-
Sales Price
$1,996,000
-
Sq. Footage
3, 000
-
Price/SqFt
$665
HOA
-
Association
NO
School District
-
Elementary School
Seacliff
-
Middle School
Dwyer
-
High School
Huntington Beach
Property Features
-
Stories
2
-
Senior Community YN
NO
-
Sewer
Public Sewer
-
Tax Lot
6453
-
Water Source
Public
Schedule a Showing
Showing scheduled successfully.
Mortgage calculator
Estimate your monthly mortgage payment, including the principal and interest, property taxes, and HOA. Adjust the values to generate a more accurate rate.
Your payment
Principal and Interest:
$
Property taxes:
$
HOA fees:
$
Total loan payment:
$
Total interest amount:
$
Location
County
Orange
Elementary School
Seacliff
Middle School
Dwyer
High School
Huntington Beach
Listing Courtesy of Amy Gillissen , Coldwell Banker Realty
RealHub Information is provided exclusively for consumers' personal, non-commercial use, and it may not be used for any purpose other than to identify prospective properties consumers may be interested in purchasing. All information deemed reliable but not guaranteed and should be independently verified. All properties are subject to prior sale, change or withdrawal. RealHub website owner shall not be responsible for any typographical errors, misinformation, misprints and shall be held totally harmless.

FOUNDER
LinaMirza
Call Lina today to schedule a private showing.

* Listings on this website come from the FMLS IDX Compilation and may be held by brokerage firms other than the owner of this website. The listing brokerage is identified in any listing details. Information is deemed reliable but is not guaranteed. If you believe any FMLS listing contains material that infringes your copyrighted work please click here to review our DMCA policy and learn how to submit a takedown request.© 2024 FMLS.
