Property
Beds
None
Full Baths
None
1/2 Baths
None
Year Built
None
Lot size
2.5 acres
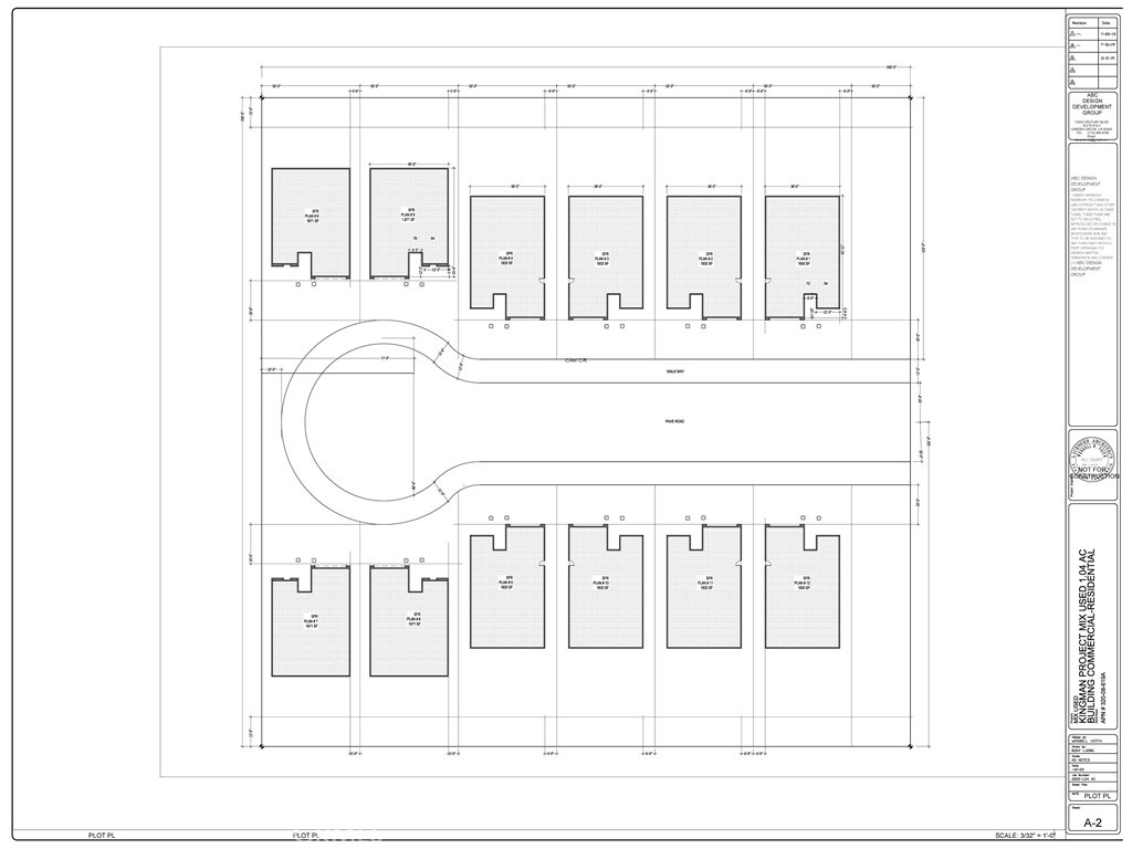
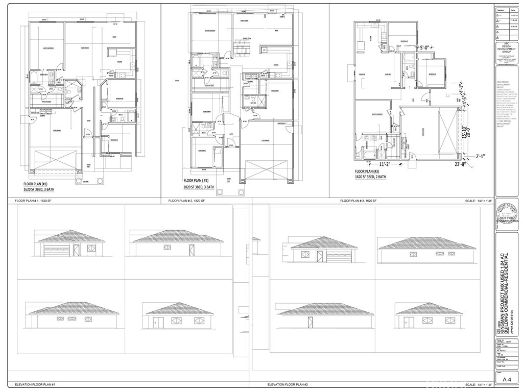
Great opportunity to own 2.5 acres of vacant land in the heart of Adelanto, San Bernadino County California. This parcel presents a rare and exciting opportunity to build their dream homes. Nestled in a growing area with great potential, the property offers flexibility and long-term value. Across street is an upcoming project with thousands of homes ready to be built. With all utilities conveniently nearby, this property is primed for progress. Whether you're envisioning a custom home with space to grow or looking to take advantage of the subdivision potential, this is a chance to bring your vision to life in a high-potential location. Parcel# 045-812-629, no address yet but located close to address: 18490 Koala Rd 9800 Adelanto CA 92301 (same street) or Chamberlan Way Adelanto CA 92301 (across street). Development plans are in Supplements with proposal of 12 homes or more. Buyers are encouraged to verify all property details with the City Of Adelanto Planning/Building Department and local utility providers. Don’t miss out on this versatile, value-packed property with endless possibilities!
Features & Amenities
Interior
-
Total Bedrooms
N/A
-
Bathrooms
N/A
-
Pet friendly
N/A
Exterior
-
Garage
No
-
Pool
No
-
View
None
Area & Lot
-
Lot Features
Desert Back
-
Lot Size(acres)
2.5
-
Property Type
Land
Price
-
Sales Price
$279,000
-
Sq. Footage
N/A
-
Price/SqFt
N/A
HOA
-
Association
NO
School District
-
Elementary School
N/A
-
Middle School
N/A
-
High School
N/A
Property Features
-
Senior Community YN
NO
Schedule a Showing
Showing scheduled successfully.
Mortgage calculator
Estimate your monthly mortgage payment, including the principal and interest, property taxes, and HOA. Adjust the values to generate a more accurate rate.
Your payment
Principal and Interest:
$
Property taxes:
$
HOA fees:
$
Total loan payment:
$
Total interest amount:
$
Location
County
San Bernardino
Elementary School
Middle School
High School
Listing Courtesy of Danny Nguyen , JND Realty
RealHub Information is provided exclusively for consumers' personal, non-commercial use, and it may not be used for any purpose other than to identify prospective properties consumers may be interested in purchasing. All information deemed reliable but not guaranteed and should be independently verified. All properties are subject to prior sale, change or withdrawal. RealHub website owner shall not be responsible for any typographical errors, misinformation, misprints and shall be held totally harmless.

FOUNDER
LinaMirza
Call Lina today to schedule a private showing.

* Listings on this website come from the FMLS IDX Compilation and may be held by brokerage firms other than the owner of this website. The listing brokerage is identified in any listing details. Information is deemed reliable but is not guaranteed. If you believe any FMLS listing contains material that infringes your copyrighted work please click here to review our DMCA policy and learn how to submit a takedown request.© 2024 FMLS.
