Property
Beds
3
Full Baths
2
1/2 Baths
None
Year Built
1989
Sq.Footage
2,400
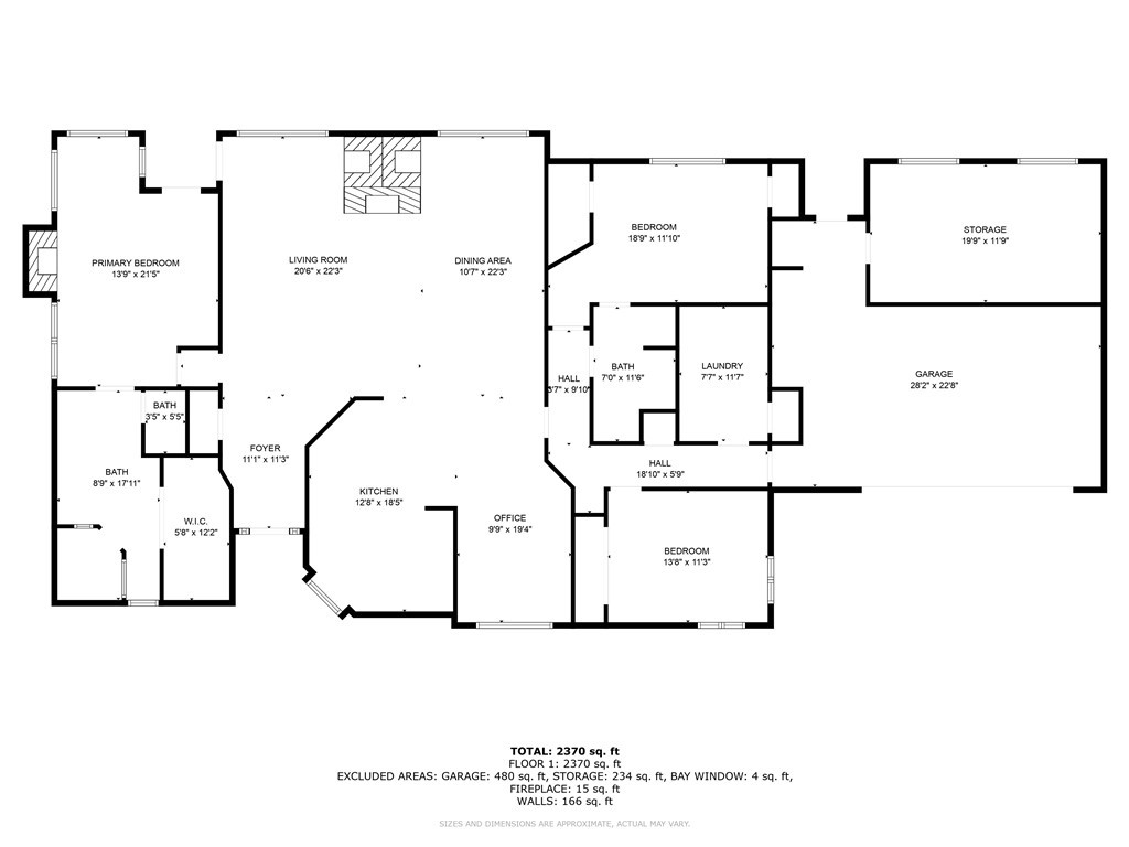
Welcome to this beautiful 2,400 sq. ft. home nestled in the serene bluff of Nipomo. This spacious 3-bedroom, 2-bathroom residence offers a harmonious blend of comfort, style, and natural beauty—with sweeping panoramic views of the lush crop fields in the valley below. Step inside to find durable and elegant tile flooring throughout, enhancing both aesthetics and easy maintenance. The expansive great room is a true centerpiece of the home, featuring a striking three-sided fireplace that adds warmth and ambiance from every angle—perfect for entertaining or relaxing. The well-designed primary suite offers a private retreat with a cozy fireplace, creating the perfect atmosphere for winding down. The suite also features a generously sized walk-in closet and a luxurious en-suite bathroom with dual vanities and a spacious walk-in tiled shower. Outside, the natural beauty of the surrounding agricultural landscape creates a sense of peace and open space, offering breathtaking sunsets and a unique connection to Nipomo’s rural charm. Don’t miss the opportunity to make this exceptional view property your home—where privacy, space, and scenery come together in one perfect package.
Features & Amenities
Interior
-
Other Interior Features
Eat-in Kitchen, Tile Counters, Master Downstairs
-
Total Bedrooms
3
-
Bathrooms
2
-
Cooling YN
NO
-
Cooling
None
-
Fireplace YN
YES
-
Heating YN
YES
-
Heating
Forced Air
-
Main Level Bedrooms
3
-
Pet friendly
N/A
Exterior
-
Garage
Yes
-
Garage spaces
2
-
Construction Materials
Stucco
-
Parking
Attached, Driveway, Garage
-
Pool
Yes
-
Pool Features
None
-
View
Valley
Area & Lot
-
Lot Size(acres)
1.66
-
Property Type
Residential
-
Property Sub Type
Single Family Residence
Price
-
Sales Price
$985,000
-
Sq. Footage
2, 400
-
Price/SqFt
$410
HOA
-
Association
NO
School District
-
Elementary School
N/A
-
Middle School
N/A
-
High School
Nipomo
Property Features
-
Stories
1
-
Senior Community YN
NO
-
Sewer
Septic Tank
-
Tax Lot
9
-
Water Source
Public
Schedule a Showing
Showing scheduled successfully.
Mortgage calculator
Estimate your monthly mortgage payment, including the principal and interest, property taxes, and HOA. Adjust the values to generate a more accurate rate.
Your payment
Principal and Interest:
$
Property taxes:
$
HOA fees:
$
Total loan payment:
$
Total interest amount:
$
Location
County
San Luis Obispo
Elementary School
Middle School
High School
Nipomo
Listing Courtesy of Kyle Perhac , Home & Ranch Sotheby's Intl
RealHub Information is provided exclusively for consumers' personal, non-commercial use, and it may not be used for any purpose other than to identify prospective properties consumers may be interested in purchasing. All information deemed reliable but not guaranteed and should be independently verified. All properties are subject to prior sale, change or withdrawal. RealHub website owner shall not be responsible for any typographical errors, misinformation, misprints and shall be held totally harmless.

FOUNDER
LinaMirza
Call Lina today to schedule a private showing.

* Listings on this website come from the FMLS IDX Compilation and may be held by brokerage firms other than the owner of this website. The listing brokerage is identified in any listing details. Information is deemed reliable but is not guaranteed. If you believe any FMLS listing contains material that infringes your copyrighted work please click here to review our DMCA policy and learn how to submit a takedown request.© 2024 FMLS.
