Property
Beds
4
Full Baths
1
1/2 Baths
None
3/4 Baths
1
Year Built
1988
Sq.Footage
2,760
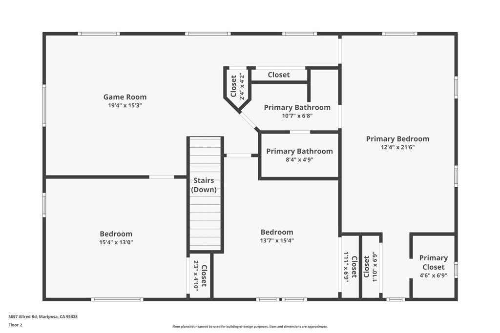
AMAZING CUSTOM HOME with PANORAMIC VIEWS from this private mountain retreat! Just minutes from Yosemite National Park, Bass Lake, and other popular lakes for boating, fishing, house boating, and year-round recreation, this 4-bedroom, 2-bath residence offers 2,760 sq. ft. of inviting living space on 27.54 acres, only a short drive to the historic town of Mariposa. Step inside to discover beautiful wood-beamed ceilings, wood-encased windows, custom wood flooring, and a stunning river rock fireplace with slate hearth that bring warmth and rustic elegance to the main living area. The spacious kitchen boasts custom cabinetry, stainless steel appliances, and a walk-in pantry, opening to the dining area and expansive wrap-around deck with spa—perfect for entertaining or simply taking in the spectacular views of the gardens, fruit trees, and wide-open skies. A versatile bedroom/office, ¾ bath, and a large laundry room with space for additional appliances complete the first floor. Upstairs features a bright open family/game room showcasing sweeping Sierra mountain views, three additional bedrooms, and a full bath. The oversized primary bedroom provides plenty of space to add a bath, if desired. Additional highlights include a fully paid solar system, private well, attached 2-car garage, several outbuildings plus an additional covered 2-car carport—ideal for a future conversion into a workshop or ADU. Outdoors, enjoy three fenced areas for gardening, pets, or farm animals, along with a detached deck for relaxation or entertaining. A true retreat designed for family and friends—close to Yosemite and Mariposa, yet private and serene with sweeping scenic Sierra Mountain Views. The perfect blend of mountain living, rustic charm, and modern convenience!
Features & Amenities
Interior
-
Other Interior Features
Beamed Ceilings, Built-in Features, Ceiling Fan(s), Laminate Counters, Open Floorplan, Pantry, Walk-In Closet(s)
-
Total Bedrooms
4
-
Bathrooms
1
-
3/4 Bathrooms
1
-
Cooling YN
YES
-
Cooling
Central Air, Electric
-
Fireplace YN
YES
-
Heating YN
YES
-
Heating
Fireplace Insert, Central, Forced Air, Propane, Wood Stove
-
Main Level Bedrooms
1
-
Pet friendly
N/A
Exterior
-
Garage
Yes
-
Garage spaces
3
-
Parking
Attached, Direct Access, Driveway, Garage Faces Front, Garage, Gravel, See Remarks
-
Pool
Yes
-
Pool Features
None
-
View
Hills, Mountain(s), Panoramic, Trees/Woods
Area & Lot
-
Lot Features
Agricultural, Front Yard, Rolling Slope, Wooded
-
Lot Size(acres)
27.54
-
Property Type
Residential
-
Property Sub Type
Single Family Residence
Price
-
Sales Price
$595,000
-
Sq. Footage
2, 760
-
Price/SqFt
$215
HOA
-
Association
NO
School District
-
Elementary School
N/A
-
Middle School
N/A
-
High School
N/A
Property Features
-
Stories
2
-
Foundation Details
Combination
-
Senior Community YN
NO
-
Sewer
Septic Tank
-
Water Source
Well
Schedule a Showing
Showing scheduled successfully.
Mortgage calculator
Estimate your monthly mortgage payment, including the principal and interest, property taxes, and HOA. Adjust the values to generate a more accurate rate.
Your payment
Principal and Interest:
$
Property taxes:
$
HOA fees:
$
Total loan payment:
$
Total interest amount:
$
Location
County
Mariposa
Elementary School
Middle School
High School
Listing Courtesy of Julie Gerken , EXP Realty of California Inc.
RealHub Information is provided exclusively for consumers' personal, non-commercial use, and it may not be used for any purpose other than to identify prospective properties consumers may be interested in purchasing. All information deemed reliable but not guaranteed and should be independently verified. All properties are subject to prior sale, change or withdrawal. RealHub website owner shall not be responsible for any typographical errors, misinformation, misprints and shall be held totally harmless.

FOUNDER
LinaMirza
Call Lina today to schedule a private showing.

* Listings on this website come from the FMLS IDX Compilation and may be held by brokerage firms other than the owner of this website. The listing brokerage is identified in any listing details. Information is deemed reliable but is not guaranteed. If you believe any FMLS listing contains material that infringes your copyrighted work please click here to review our DMCA policy and learn how to submit a takedown request.© 2024 FMLS.
