Property
Beds
4
Full Baths
3
1/2 Baths
None
Year Built
1967
Sq.Footage
2,012
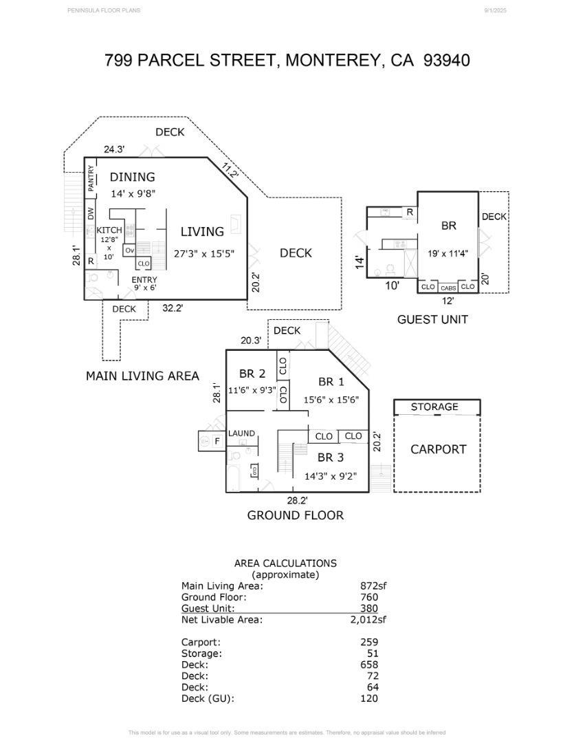
Perched on a hand-selected double lot with what may be the finest ocean views in New Monterey sits this architectural gem designed by famed local architect John Gamble, known for his mastery of seamlessly blending mid-century modern design with natural elements. Rarely does a home of this caliber and character come to market; only the third owners since its creation have lovingly restored and thoughtfully updated it, while preserving its timeless character. French doors frame sweeping views of the Monterey Bay and Pacific Ocean. Warm oak engineered wood floors flow through the main living spaces, complemented by the original cast iron fireplace now burning gas. The open floor plan centered around the view includes a remodeled chefs kitchen featuring granite counters, Wolf appliances, and new designer lighting, while a large deck with a built-in fire pit extends the living space outdoors for unforgettable sunsets. If the 3 bedrooms and 2 and a half baths aren't enough, there is a newly built ADU with ocean views, radiant heat, Caesarstone counters, full kitchen with custom cabinetry, ceramic tile floors, and a sleek bath ideal for guests, rental income, or extended family. Extra parking and a paver driveway accommodate both residences, along with two storage sheds for convenience.
Features & Amenities
Interior
-
Total Bedrooms
4
-
Bathrooms
3
-
Cooling YN
YES
-
Cooling
None
-
Fireplace YN
YES
-
Heating YN
YES
-
Heating
Fireplace Insert, Central
-
Pet friendly
N/A
Exterior
-
Garage
No
-
Parking
Carport
-
Pool
No
-
View
Bay, Mountain(s), Ocean
Area & Lot
-
Lot Size(acres)
0.2296
-
Property Type
Residential
-
Property Sub Type
Single Family Residence
Price
-
Sales Price
$2,195,000
-
Sq. Footage
2, 012
-
Price/SqFt
$1,090
HOA
-
Association
NO
School District
-
Elementary School
N/A
-
Middle School
N/A
-
High School
N/A
Property Features
-
Stories
2
-
Water Source
Public
Schedule a Showing
Showing scheduled successfully.
Mortgage calculator
Estimate your monthly mortgage payment, including the principal and interest, property taxes, and HOA. Adjust the values to generate a more accurate rate.
Your payment
Principal and Interest:
$
Property taxes:
$
HOA fees:
$
Total loan payment:
$
Total interest amount:
$
Location
County
Monterey
Elementary School
Middle School
High School
Listing Courtesy of Tim Allen , Coldwell Banker Realty
RealHub Information is provided exclusively for consumers' personal, non-commercial use, and it may not be used for any purpose other than to identify prospective properties consumers may be interested in purchasing. All information deemed reliable but not guaranteed and should be independently verified. All properties are subject to prior sale, change or withdrawal. RealHub website owner shall not be responsible for any typographical errors, misinformation, misprints and shall be held totally harmless.

FOUNDER
LinaMirza
Call Lina today to schedule a private showing.

* Listings on this website come from the FMLS IDX Compilation and may be held by brokerage firms other than the owner of this website. The listing brokerage is identified in any listing details. Information is deemed reliable but is not guaranteed. If you believe any FMLS listing contains material that infringes your copyrighted work please click here to review our DMCA policy and learn how to submit a takedown request.© 2024 FMLS.
