Craftsman
0 Lincoln 3 NE of 5th Street
Carmel , CA 93921
MLS#: ML82017762
$4,750,000

Property
Beds
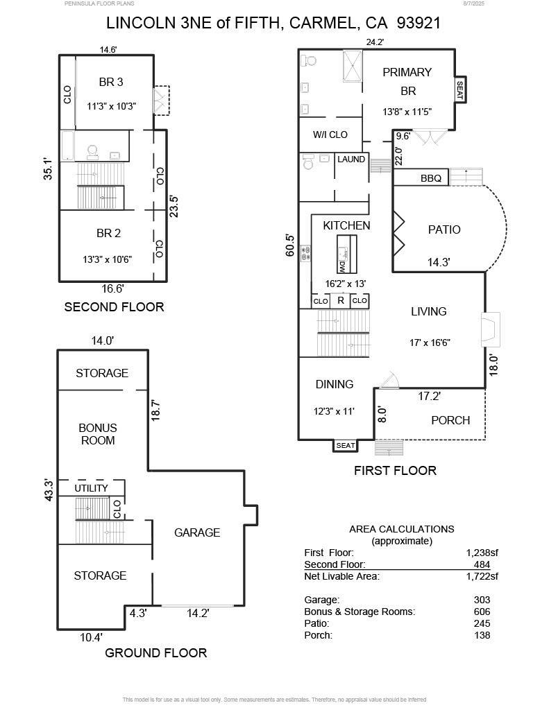
3
Full Baths
2
1/2 Baths
1
Year Built
2025
Sq.Footage
1,722
It has it all! This newly constructed 3 bedrooms and 2.5 baths, craftsman style home, is designed by Thomas Bateman Hood. The property is steps from the center of Carmel Village, with views of the water and a long list of amenities, that make this a truly unique property. There is lots of attention to details with coffered and wood ceilings, American white oak wood floors, radiant heating throughout, solar energy system with battery back-up, two Tesla wall charges, lots of built in storage and bonus basement rooms in the oversized garage, outdoor kitchen and the list goes on. Come and experience this well-crafted home.
Features & Amenities
Interior
-
Total Bedrooms
3
-
Bathrooms
2
-
1/2 Bathrooms
1
-
Basement YN
YES
-
Cooling YN
YES
-
Cooling
None
-
Fireplace YN
YES
-
Heating YN
YES
-
Pet friendly
N/A
Exterior
-
Garage
Yes
-
Garage spaces
1
-
Parking
Attached, Electric Vehicle Charging Station(s), Off Street
-
Pool
No
-
View
Ocean
Area & Lot
-
Lot Size(acres)
0.094
-
Property Type
Residential
-
Property Sub Type
Single Family Residence
-
Architectural Style
Craftsman
Price
-
Sales Price
$4,750,000
-
Sq. Footage
1, 722
-
Price/SqFt
$2,758
HOA
-
Association
NO
School District
-
Elementary School
N/A
-
Middle School
N/A
-
High School
N/A
Property Features
-
Sewer
Public Sewer
Schedule a Showing
Showing scheduled successfully.
Mortgage calculator
Estimate your monthly mortgage payment, including the principal and interest, property taxes, and HOA. Adjust the values to generate a more accurate rate.
Your payment
Principal and Interest:
$
Property taxes:
$
HOA fees:
$
Total loan payment:
$
Total interest amount:
$
Location
County
Monterey
Elementary School
Middle School
High School
Listing Courtesy of Susan Fox , Peninsula Real Estate Group, Inc.
RealHub Information is provided exclusively for consumers' personal, non-commercial use, and it may not be used for any purpose other than to identify prospective properties consumers may be interested in purchasing. All information deemed reliable but not guaranteed and should be independently verified. All properties are subject to prior sale, change or withdrawal. RealHub website owner shall not be responsible for any typographical errors, misinformation, misprints and shall be held totally harmless.

FOUNDER
LinaMirza
Call Lina today to schedule a private showing.

* Listings on this website come from the FMLS IDX Compilation and may be held by brokerage firms other than the owner of this website. The listing brokerage is identified in any listing details. Information is deemed reliable but is not guaranteed. If you believe any FMLS listing contains material that infringes your copyrighted work please click here to review our DMCA policy and learn how to submit a takedown request.© 2024 FMLS.
