Property
Beds
3
Full Baths
2
1/2 Baths
1
Year Built
2024
Sq.Footage
2,202
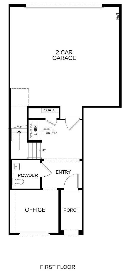
This stunning three-story home offers approximately 2,202 sq. ft. of modern living space with 3 bedrooms, 2.5 baths, and a versatile office. Designed for comfort and convenience, this plan includes a private elevator for easy access to every level. The open-concept layout features a spacious living room, dining area, and a third-floor deckideal for relaxing or entertaining. Enjoy upgraded flooring throughout, and a gourmet kitchen that boasts elegant shaker-style cabinetry and quartz countertops in Simply White, complemented by a Whirlpool® stainless steel appliance package with a 36-inch 5-burner built-in gas cooktop with vent hood, 30-inch built-in single oven, built-in microwave with trim kit, and an ENERGY STAR® dishwasher with a 1-hour wash cycle. Additional highlights include a 2-car garage and thoughtfully designed finishes throughout.
Features & Amenities
Interior
-
Other Interior Features
Walk-In Closet(s)
-
Total Bedrooms
3
-
Bathrooms
2
-
1/2 Bathrooms
1
-
Cooling YN
YES
-
Cooling
Central Air
-
Fireplace YN
NO
-
Heating YN
YES
-
Pet friendly
N/A
Exterior
-
Garage
Yes
-
Garage spaces
2
-
Construction Materials
Stucco, Vinyl Siding
-
Parking
Attached
-
Pool
No
Area & Lot
-
Property Type
Residential
-
Property Sub Type
Condominium
Price
-
Sales Price
$1,041,217
-
Sq. Footage
2, 202
-
Price/SqFt
$472
HOA
-
Association
Yes
-
Association Fee
$381
-
Association Fee Frequency
Monthly
-
Association Fee Includes
N/A
School District
-
Elementary School
Other
-
Middle School
N/A
-
High School
Other
Property Features
-
Stories
3
-
Sewer
Public Sewer
-
Water Source
Public
Schedule a Showing
Showing scheduled successfully.
Mortgage calculator
Estimate your monthly mortgage payment, including the principal and interest, property taxes, and HOA. Adjust the values to generate a more accurate rate.
Your payment
Principal and Interest:
$
Property taxes:
$
HOA fees:
$
Total loan payment:
$
Total interest amount:
$
Location
County
Santa Clara
Elementary School
Other
Middle School
High School
Other
Listing Courtesy of Michael Vandaele , Van Daele Development
RealHub Information is provided exclusively for consumers' personal, non-commercial use, and it may not be used for any purpose other than to identify prospective properties consumers may be interested in purchasing. All information deemed reliable but not guaranteed and should be independently verified. All properties are subject to prior sale, change or withdrawal. RealHub website owner shall not be responsible for any typographical errors, misinformation, misprints and shall be held totally harmless.
FOUNDER
Lina Mirza
Call Lina today to schedule a private showing.
* Listings on this website come from the FMLS IDX Compilation and may be held by brokerage firms other than the owner of this website. The listing brokerage is identified in any listing details. Information is deemed reliable but is not guaranteed. If you believe any FMLS listing contains material that infringes your copyrighted work please click here to review our DMCA policy and learn how to submit a takedown request.© 2024 FMLS.