Property
Beds
3
Full Baths
2
1/2 Baths
None
Year Built
2001
Sq.Footage
1,200
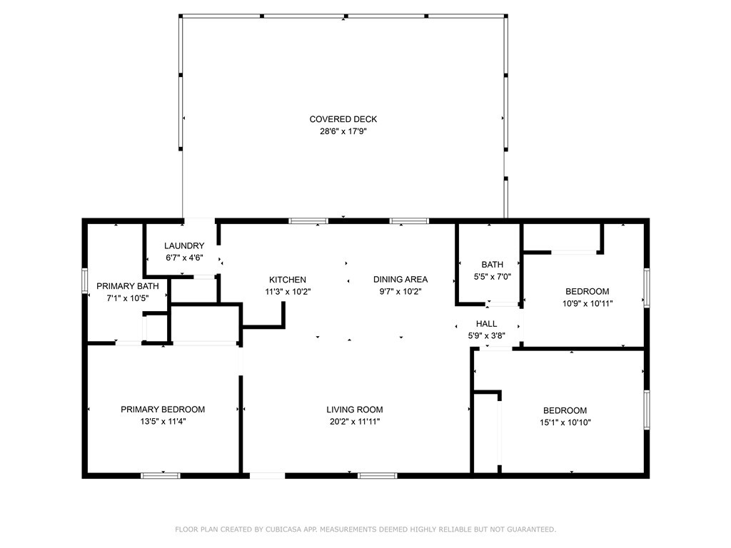
Charming Upgrades, Outdoor Living, Ideal Location! This charming three bedroom, two bath home offers 1,200 square feet of thoughtfully designed living space with high ceilings, abundant natural light, and a well-considered floor plan that places the primary suite on one side and additional bedrooms on the other. Recent upgrades include new flooring, fresh exterior paint including the porch, new front steps, select new windows, a newer HVAC system, extra insulation for year-round comfort and a durable concrete perimeter foundation.. The back door opens onto a beautiful 580 sq. ft. covered deck, perfect for outdoor dining, entertaining, or simply relaxing while overlooking the level, fully fenced double corner lot shaded by mature oaks. A gardener’s dream, the expansive yard provides sunny areas for planting as well as plenty of room for play or projects. Just minutes from Clear Lake’s public boat launches, fishing, swimming, and water sports—as well as local shopping, dining, and nearby wine country—this property offers the best of Lake County living. Whether you’re a retiree seeking a peaceful setting, a first-time buyer looking for an affordable move-in ready home, or an investor searching for a versatile rental property near recreation, this home blends comfort, convenience, and outdoor enjoyment in one inviting package
Features & Amenities
Interior
-
Other Interior Features
Ceiling Fan(s), High Ceilings, Open Floorplan, Master Downstairs
-
Total Bedrooms
3
-
Bathrooms
2
-
Cooling YN
YES
-
Cooling
Central Air
-
Fireplace YN
NO
-
Heating YN
YES
-
Heating
Central, Propane
-
Main Level Bedrooms
3
-
Pet friendly
N/A
Exterior
-
Garage
Yes
-
Garage spaces
2
-
Parking
Driveway, Garage Faces Front, Garage
-
Patio and Porch Features
Rear Porch, Covered, Porch
-
Pool
Yes
-
Pool Features
None
-
View
Neighborhood
Area & Lot
-
Lot Features
Corner Lot, Level, Near Public Transit, Wooded
-
Lot Size(acres)
0.26
-
Property Type
Residential
-
Property Sub Type
Manufactured On Land
Price
-
Sales Price
$260,000
-
Sq. Footage
1, 200
-
Price/SqFt
$216
HOA
-
Association
NO
School District
-
Elementary School
N/A
-
Middle School
N/A
-
High School
N/A
Property Features
-
Stories
1
-
Accessibility Features
Accessible Approach with Ramp
-
Association Amenities
Dog Park
-
Foundation Details
Concrete Perimeter
-
Senior Community YN
NO
-
Sewer
Public Sewer
-
Water Source
Public
Schedule a Showing
Showing scheduled successfully.
Mortgage calculator
Estimate your monthly mortgage payment, including the principal and interest, property taxes, and HOA. Adjust the values to generate a more accurate rate.
Your payment
Principal and Interest:
$
Property taxes:
$
HOA fees:
$
Total loan payment:
$
Total interest amount:
$
Location
County
Lake
Elementary School
Middle School
High School
Listing Courtesy of "Pi" Kimberly Stryker , Timothy Toye and Associates
RealHub Information is provided exclusively for consumers' personal, non-commercial use, and it may not be used for any purpose other than to identify prospective properties consumers may be interested in purchasing. All information deemed reliable but not guaranteed and should be independently verified. All properties are subject to prior sale, change or withdrawal. RealHub website owner shall not be responsible for any typographical errors, misinformation, misprints and shall be held totally harmless.

FOUNDER
LinaMirza
Call Lina today to schedule a private showing.

* Listings on this website come from the FMLS IDX Compilation and may be held by brokerage firms other than the owner of this website. The listing brokerage is identified in any listing details. Information is deemed reliable but is not guaranteed. If you believe any FMLS listing contains material that infringes your copyrighted work please click here to review our DMCA policy and learn how to submit a takedown request.© 2024 FMLS.
