Property
Beds
1
Full Baths
1
1/2 Baths
None
Year Built
1985
Sq.Footage
864
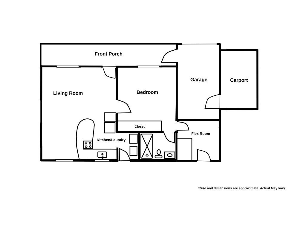
Adorable 1 bedroom 1 bathroom corner lot home in the Chocolate Drop neighborhood of 29 Palms! This home features upgrades throughout. The open concept interior design boasts a large kitchen peninsula and cozy living room. Central heating and air, a swamp cooler, and ceiling fans ensure comfort throughout the year. The front porch is perfectly located to enjoy evening sunsets and incredible mountain views. Plenty of parking including an attached 1 car garage and metal carport. Wood split rail fencing lines the property boundaries. Currently a long term rental. Short drive to the North entrance to Joshua Tree National Park. The central location makes this a fantastic opportunity for a starter, retirement, or rental home!
Features & Amenities
Interior
-
Total Bedrooms
1
-
Bathrooms
1
-
Cooling YN
YES
-
Cooling
Central Air, Evaporative Cooling
-
Fireplace YN
NO
-
Heating YN
YES
-
Heating
Central
-
Main Level Bedrooms
1
-
Pet friendly
N/A
Exterior
-
Garage
Yes
-
Garage spaces
1
-
Parking
Attached, Attached Carport, Garage
-
Pool
Yes
-
Pool Features
None
-
View
Desert, Mountain(s)
Area & Lot
-
Lot Features
Corner Lot
-
Lot Size(acres)
0.2044
-
Property Type
Residential
-
Property Sub Type
Single Family Residence
Price
-
Sales Price
$215,000
-
Sq. Footage
864
-
Price/SqFt
$248
HOA
-
Association
NO
School District
-
Elementary School
N/A
-
Middle School
N/A
-
High School
N/A
Property Features
-
Stories
1
-
Senior Community YN
NO
-
Sewer
Septic Tank
-
Tax Lot
56
-
Water Source
Public
Schedule a Showing
Showing scheduled successfully.
Mortgage calculator
Estimate your monthly mortgage payment, including the principal and interest, property taxes, and HOA. Adjust the values to generate a more accurate rate.
Your payment
Principal and Interest:
$
Property taxes:
$
HOA fees:
$
Total loan payment:
$
Total interest amount:
$
Location
County
San Bernardino
Elementary School
Middle School
High School
Listing Courtesy of Miller Olsen , Rarick Realty Group
RealHub Information is provided exclusively for consumers' personal, non-commercial use, and it may not be used for any purpose other than to identify prospective properties consumers may be interested in purchasing. All information deemed reliable but not guaranteed and should be independently verified. All properties are subject to prior sale, change or withdrawal. RealHub website owner shall not be responsible for any typographical errors, misinformation, misprints and shall be held totally harmless.

FOUNDER
LinaMirza
Call Lina today to schedule a private showing.

* Listings on this website come from the FMLS IDX Compilation and may be held by brokerage firms other than the owner of this website. The listing brokerage is identified in any listing details. Information is deemed reliable but is not guaranteed. If you believe any FMLS listing contains material that infringes your copyrighted work please click here to review our DMCA policy and learn how to submit a takedown request.© 2024 FMLS.
