Property
Beds
4
Full Baths
3
1/2 Baths
None
Year Built
2005
Sq.Footage
3,464
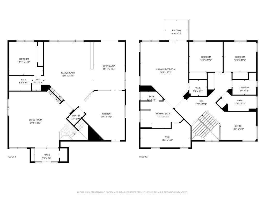
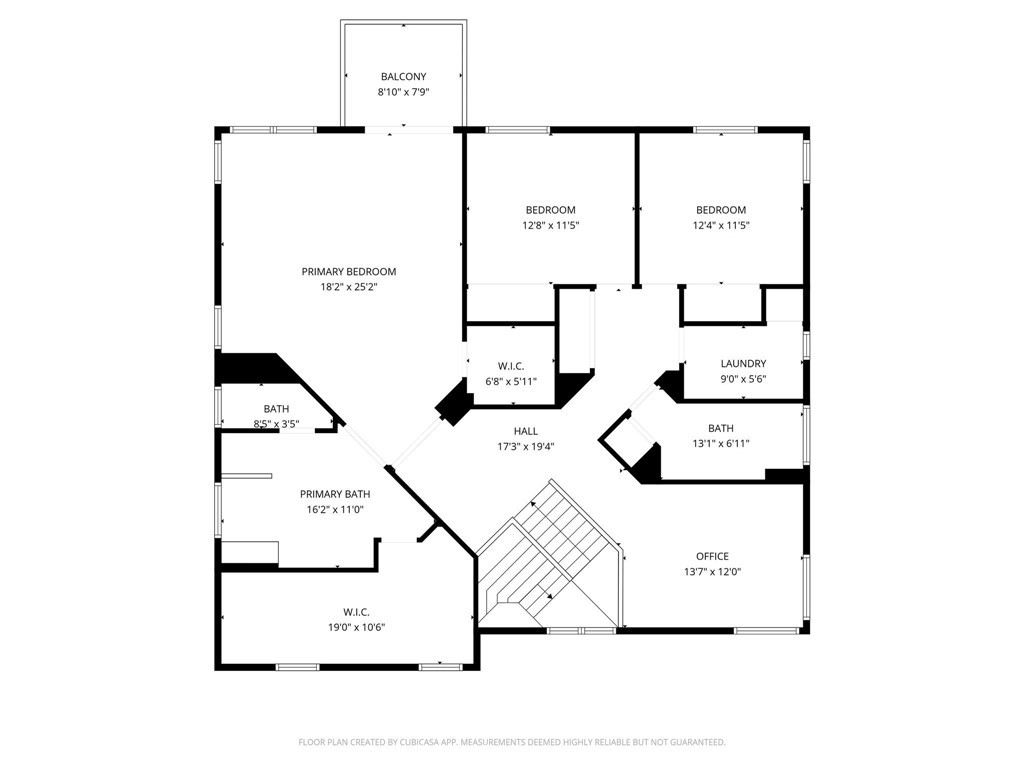
Welcome to 1564 Rose Street, a beautifully maintained home built in 2005 in the highly desirable Blossom Heights community of North Redlands. This spacious 4-bedroom, 3-bath residence offers 3,464 sq ft of living space on an 8,073 sq ft lot, showcasing true pride of ownership throughout. The home features a main-level bedroom and full bath, perfect for guests, in-laws, or a private home office. Gather in the open living spaces around the stunning double-sided stone fireplace serving both the living and family rooms, accented with classic white shutters. A beautiful staircase and loft area add character and versatility, ideal for a home office, play area, or reading nook. Upstairs, the serene primary suite boasts a private balcony with breathtaking mountain views, a walk-in closet, and plenty of storage. Additional bedrooms are generously sized with decent-sized closet space, providing comfort for family and guests alike. Step outside to the backyard, a blank canvas ready for your personal touch, whether it’s a pool, garden, or outdoor entertainment area. The home also includes a 3-car attached garage. Enjoy all the perks of the Blossom Heights community, including a charming park and picnic area with orange and grapefruit trees, perfect for family gatherings, relaxing afternoons, or simply enjoying the outdoors. Located within a top-rated school district and close to parks, shopping, and downtown Redlands, this home combines charm, functionality, and lifestyle in a truly special setting.
Features & Amenities
Interior
-
Other Interior Features
Walk-In Closet(s)
-
Total Bedrooms
4
-
Bathrooms
3
-
Cooling YN
YES
-
Cooling
Central Air
-
Fireplace YN
YES
-
Heating YN
YES
-
Heating
Central
-
Main Level Bedrooms
1
-
Pet friendly
N/A
Exterior
-
Garage
Yes
-
Garage spaces
3
-
Parking
Attached
-
Pool
Yes
-
Pool Features
None
-
View
None
Area & Lot
-
Lot Features
Back Yard, Front Yard
-
Lot Size(acres)
0.1853
-
Property Type
Residential
-
Property Sub Type
Single Family Residence
Price
-
Sales Price
$785,000
-
Sq. Footage
3, 464
-
Price/SqFt
$226
HOA
-
Association
YES
-
Association Fee
$73
-
Association Fee Frequency
Monthly
-
Association Fee Includes
N/A
School District
-
Elementary School
N/A
-
Middle School
N/A
-
High School
N/A
Property Features
-
Stories
2
-
Association Amenities
Other, Picnic Area
-
Senior Community YN
NO
-
Sewer
Public Sewer
-
Tax Lot
21
-
Water Source
Public
Schedule a Showing
Showing scheduled successfully.
Mortgage calculator
Estimate your monthly mortgage payment, including the principal and interest, property taxes, and HOA. Adjust the values to generate a more accurate rate.
Your payment
Principal and Interest:
$
Property taxes:
$
HOA fees:
$
Total loan payment:
$
Total interest amount:
$
Location
County
San Bernardino
Elementary School
Middle School
High School
Listing Courtesy of Gordon Glariada , STIGLER HOMES
RealHub Information is provided exclusively for consumers' personal, non-commercial use, and it may not be used for any purpose other than to identify prospective properties consumers may be interested in purchasing. All information deemed reliable but not guaranteed and should be independently verified. All properties are subject to prior sale, change or withdrawal. RealHub website owner shall not be responsible for any typographical errors, misinformation, misprints and shall be held totally harmless.

FOUNDER
LinaMirza
Call Lina today to schedule a private showing.

* Listings on this website come from the FMLS IDX Compilation and may be held by brokerage firms other than the owner of this website. The listing brokerage is identified in any listing details. Information is deemed reliable but is not guaranteed. If you believe any FMLS listing contains material that infringes your copyrighted work please click here to review our DMCA policy and learn how to submit a takedown request.© 2024 FMLS.
