Property
Beds
4
Full Baths
2
1/2 Baths
1
Year Built
1969
Sq.Footage
2,452
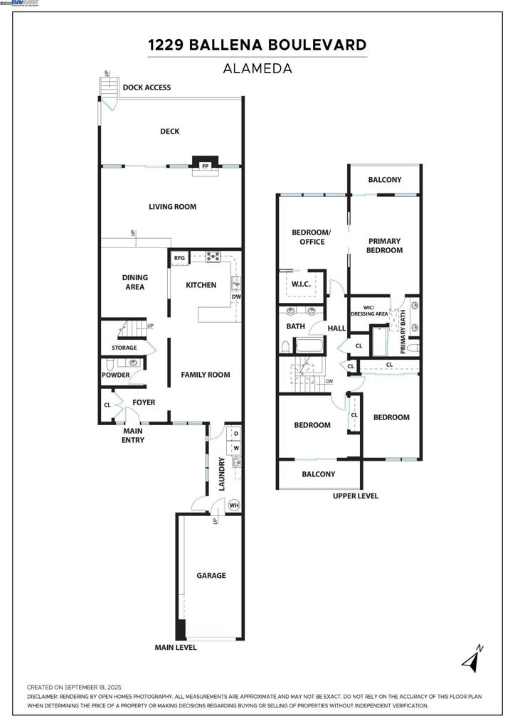
A rare waterfront opportunity on Alameda’s coveted Ballena Bay, this upgraded 4BD/2.5BA contemporary townhome offers exceptional island living with a private deep water boat slip. From the enclosed front patio, step inside the 2452 SQFT home’s spacious and flexible living area, beginning with a large eat-in kitchen and den. Nearby, the formal dining room is connected with a passthrough to the kitchen. Dine with a view of the bay framed by the wall of windows and glass doors in the adjacent living room. Open the doors onto the deck to relax with family or entertain friends with calming waters all around you and your own private dock just steps away. The home’s lower level is complete with a powder room, laundry room with sink, and interior access to the garage. Gorgeous hardwood floors span upstairs where two sunny bedrooms with custom closets share a full bath with a dual vanity. One has glass doors onto a front balcony. Currently configured as a huge primary suite, a wall in the third bedroom can be restored to create a fourth. The rooms have fabulous bay views, and the primary bedroom has an ensuite bath, walk-in closet and a deck. Explore the vibrant island life including: Webster Street, farmers market, the ferry, Transbay bus, Crown Beach, great schools, and shoreline trails
Features & Amenities
Interior
-
Other Interior Features
Eat-in Kitchen
-
Total Bedrooms
4
-
Bathrooms
2
-
1/2 Bathrooms
1
-
Cooling YN
YES
-
Cooling
N/A
-
Fireplace YN
YES
-
Heating YN
YES
-
Heating
Forced Air
-
Pet friendly
N/A
Exterior
-
Garage
Yes
-
Garage spaces
1
-
Construction Materials
See Remarks
-
Parking
Off Street
-
Patio and Porch Features
Deck, Patio
-
Pool
Yes
-
Pool Features
None
-
View
City Lights, Hills, Marina, Water
Area & Lot
-
Lot Size(acres)
0.0573
-
Property Type
Residential
-
Property Sub Type
Townhouse
-
Architectural Style
Contemporary
Price
-
Sales Price
$1,495,000
-
Sq. Footage
2, 452
-
Price/SqFt
$609
HOA
-
Association
YES
-
Association Fee
$1,097
-
Association Fee Frequency
Monthly
-
Association Fee Includes
N/A
School District
-
Elementary School
N/A
-
Middle School
N/A
-
High School
N/A
Property Features
-
Stories
2
-
Association Amenities
Maintenance Grounds, Other
-
Sewer
Public Sewer
Schedule a Showing
Showing scheduled successfully.
Mortgage calculator
Estimate your monthly mortgage payment, including the principal and interest, property taxes, and HOA. Adjust the values to generate a more accurate rate.
Your payment
Principal and Interest:
$
Property taxes:
$
HOA fees:
$
Total loan payment:
$
Total interest amount:
$
Location
County
Alameda
Elementary School
Middle School
High School
Listing Courtesy of David Gunderman , KW Advisors East Bay
RealHub Information is provided exclusively for consumers' personal, non-commercial use, and it may not be used for any purpose other than to identify prospective properties consumers may be interested in purchasing. All information deemed reliable but not guaranteed and should be independently verified. All properties are subject to prior sale, change or withdrawal. RealHub website owner shall not be responsible for any typographical errors, misinformation, misprints and shall be held totally harmless.

FOUNDER
LinaMirza
Call Lina today to schedule a private showing.

* Listings on this website come from the FMLS IDX Compilation and may be held by brokerage firms other than the owner of this website. The listing brokerage is identified in any listing details. Information is deemed reliable but is not guaranteed. If you believe any FMLS listing contains material that infringes your copyrighted work please click here to review our DMCA policy and learn how to submit a takedown request.© 2024 FMLS.
