Property
Beds
None
Full Baths
None
1/2 Baths
None
Year Built
1924
Sq.Footage
N/A
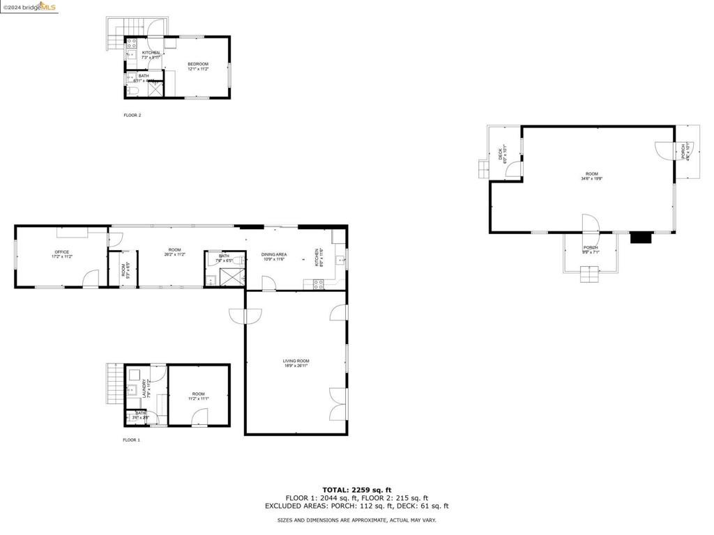
763 Moorpark is a uniquely positioned commercial/industrial zoned site situated on a cul-de-sac near the Oakland/San Leandro border. The fully fenced lot spans the entire block and features entrances from both Moorpark and Blenheim streets. Structures include a 1bd single family home, various conditioned gallery/office/studio spaces, and an expansive craneway (21' clear) previously used for stone sculpting and supply. Property is plumbed for pneumatics and has 500AMPS 120/240v 3 phase power. Various equipment including two 2-ton cranes and a shipping container are included in the sale. SELLER FINANCING AVAILABLE
Features & Amenities
Interior
-
Total Bedrooms
N/A
-
Bathrooms
N/A
-
Cooling YN
YES
-
Cooling
N/A
-
Heating YN
YES
-
Heating
Electric, Wall Furnace
-
Pet friendly
N/A
Exterior
-
Garage
No
-
Construction Materials
See Remarks
-
Pool
No
Area & Lot
-
Lot Size(acres)
0.46
-
Property Type
Commercial Sale
Price
-
Sales Price
$985,000
-
Sq. Footage
N/A
-
Price/SqFt
N/A
HOA
-
Association
No
School District
-
Elementary School
N/A
-
Middle School
N/A
-
High School
N/A
Schedule a Showing
Showing scheduled successfully.
Mortgage calculator
Estimate your monthly mortgage payment, including the principal and interest, property taxes, and HOA. Adjust the values to generate a more accurate rate.
Your payment
Principal and Interest:
$
Property taxes:
$
HOA fees:
$
Total loan payment:
$
Total interest amount:
$
Location
County
Alameda
Elementary School
Middle School
High School
Listing Courtesy of Thomas Garabedian Cone , Red Oak Realty
RealHub Information is provided exclusively for consumers' personal, non-commercial use, and it may not be used for any purpose other than to identify prospective properties consumers may be interested in purchasing. All information deemed reliable but not guaranteed and should be independently verified. All properties are subject to prior sale, change or withdrawal. RealHub website owner shall not be responsible for any typographical errors, misinformation, misprints and shall be held totally harmless.

FOUNDER
LinaMirza
Call Lina today to schedule a private showing.

* Listings on this website come from the FMLS IDX Compilation and may be held by brokerage firms other than the owner of this website. The listing brokerage is identified in any listing details. Information is deemed reliable but is not guaranteed. If you believe any FMLS listing contains material that infringes your copyrighted work please click here to review our DMCA policy and learn how to submit a takedown request.© 2024 FMLS.
