Property
Beds
2
Full Baths
3
1/2 Baths
None
Year Built
1979
Sq.Footage
1,458
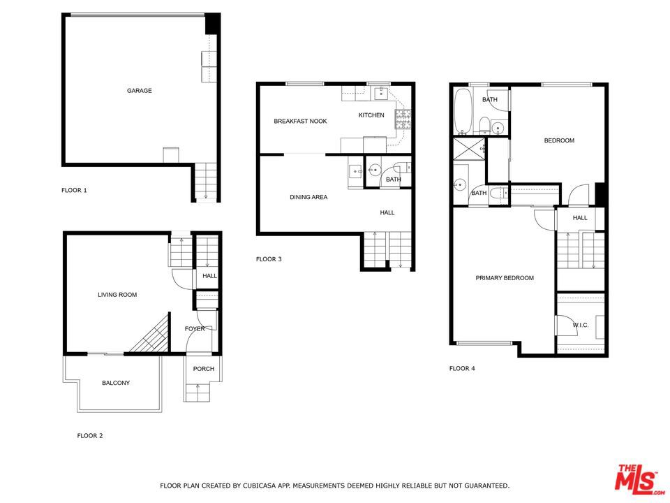
Step into this beautifully updated two bedroom, three bath townhome located in the desirable Northbrooke community. Recently renovated, the home features quartz countertops, modern appliances, new flooring, fresh paint, updated fixtures, and recessed lighting throughout. Natural light pours into the open-concept living and dining areas, where a cozy gas fireplace and wet bar create the perfect setting for entertaining. The kitchen is both functional and stylish, and a convenient half bath rounds out the main level.Upstairs, each bedroom enjoys its own private en-suite bathroom, offering comfort and privacy. Additional highlights include in-unit laundry, central heating and air, and a private balcony for outdoor relaxation.Northbrooke residents enjoy access to resort-style amenities, including a pool, spa, and tennis courts, all within lush landscaped grounds. The community recently completed an extensive earthquake retrofit in 2022, and HOA dues include earthquake insurance, water, sewer, and 24-hour security patrol.Perfectly situated near shopping, Northridge Mall, restaurants, hospitals, CSUN, and public transportation, this home blends convenience with a tranquil lifestyle. Welcome to your next chapter!
Features & Amenities
Interior
-
Total Bedrooms
2
-
Bathrooms
3
-
Cooling YN
YES
-
Cooling
Central Air
-
Fireplace YN
YES
-
Heating YN
YES
-
Heating
Central
-
Pet friendly
Yes
Exterior
-
Garage
No
-
Parking
Attached, Attached Carport
-
Pool
Yes
-
Pool Features
Association
Area & Lot
-
Lot Size(acres)
5.4817
-
Property Type
Residential
-
Property Sub Type
Townhouse
-
Architectural Style
Contemporary
Price
-
Sales Price
$649,000
-
Sq. Footage
1, 458
-
Price/SqFt
$445
HOA
-
Association
YES
-
Association Fee
$600
-
Association Fee Frequency
Monthly
-
Association Fee Includes
N/A
School District
-
Elementary School
N/A
-
Middle School
N/A
-
High School
N/A
Property Features
-
Association Amenities
Pool, Spa/Hot Tub, Security, Tennis Court(s)
-
Senior Community YN
NO
Schedule a Showing
Showing scheduled successfully.
Mortgage calculator
Estimate your monthly mortgage payment, including the principal and interest, property taxes, and HOA. Adjust the values to generate a more accurate rate.
Your payment
Principal and Interest:
$
Property taxes:
$
HOA fees:
$
Total loan payment:
$
Total interest amount:
$
Location
County
Los Angeles
Elementary School
Middle School
High School
Listing Courtesy of Ivan Robles , Aspire Los Angeles
RealHub Information is provided exclusively for consumers' personal, non-commercial use, and it may not be used for any purpose other than to identify prospective properties consumers may be interested in purchasing. All information deemed reliable but not guaranteed and should be independently verified. All properties are subject to prior sale, change or withdrawal. RealHub website owner shall not be responsible for any typographical errors, misinformation, misprints and shall be held totally harmless.

FOUNDER
LinaMirza
Call Lina today to schedule a private showing.

* Listings on this website come from the FMLS IDX Compilation and may be held by brokerage firms other than the owner of this website. The listing brokerage is identified in any listing details. Information is deemed reliable but is not guaranteed. If you believe any FMLS listing contains material that infringes your copyrighted work please click here to review our DMCA policy and learn how to submit a takedown request.© 2024 FMLS.
