1553 Michael Lane
Pacific Palisades , CA 90272
MLS#: 25585837
$1,350,000

Property
Beds
3
Full Baths
3
1/2 Baths
None
Year Built
1977
Sq.Footage
1,852
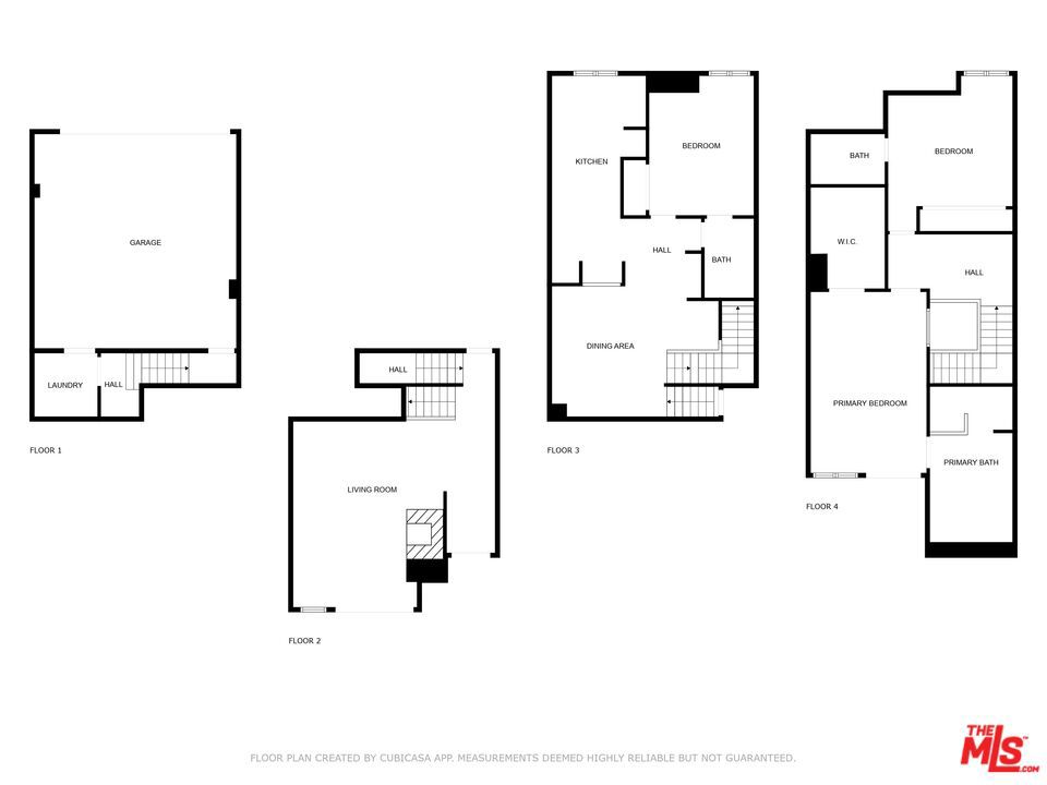
Step into this beautifully designed home featuring an inviting open floor plan that seamlessly integrates the living room with high ceilings, a striking rock stone fireplace, bamboo flooring and an al fresco dining area perfect for entertaining. The spacious dining room boasts elegant glass railings and a stylish bar that leads to a gourmet kitchen, complete with dramatic mood lighting, stainless steel appliances, granite countertops, and custom "pull out" shelving cabinetry. Enjoy the convenience of a built-in microwave, a deep "D" sink, two wine chillers, cozy breakfast bar that are all seated on beautiful ceramic floors. The main level features an exclusive private office or 3rd bedroom that offers complete privacy from upstairs life. A central skylight bathes soft light onto the stunning upstairs mahogany bookcase then gently pours that light down through the glass railed stairwell to the dining area. The luxurious primary bedroom is a true retreat, equipped with a thoughtful designed custom walk-in closet and private balcony that provides relaxing garden greenbelt and mountain views. The master bath features double sinks and large spa tub that offer a serene escape. The second bedroom, also on the upper level, includes an updated bath providing comfort and style. Additional highlights of this freshly painted exceptional home include bamboo wood floors, tankless water heater, epoxy floor in the garage and comprehensive security system. The outdoor space is equally impressive featuring a spacious entertainers patio with privacy hedging perfect for socializing with family and friends. Just up the path is a sparking swimming pool framed by a mountainous landscape featuring a spa, gym, and sauna for ultimate relaxation and recreation. Enjoy the security of a spacious 2 car garage with direct access and adjacent dedicated laundry area with ample cabinet space. There is additional utility in an under the home storage area access door. This residence also provides exclusive entry to a unique private park featuring dog-friendly zones, a playground, and expansive grassy areas, all located just minutes from the beach and picturesque local hiking paths that meander endlessly through the Santa Monica Mountains. Seize the chance to make this beautiful home yours! The fireplace is for decorative purposes only.
Features & Amenities
Interior
-
Other Interior Features
Breakfast Bar
-
Total Bedrooms
3
-
Bathrooms
3
-
Cooling YN
YES
-
Cooling
Central Air
-
Fireplace YN
YES
-
Heating YN
YES
-
Heating
Central
-
Pet friendly
Yes
Exterior
-
Garage
No
-
Parking
Direct Access, Garage, Private, Side By Side
-
Pool
Yes
-
Pool Features
Association, Community
-
View
Park/Greenbelt
Area & Lot
-
Lot Size(acres)
7.6537
-
Property Type
Residential
-
Property Sub Type
Condominium
Price
-
Sales Price
$1,350,000
-
Sq. Footage
1, 852
-
Price/SqFt
$728
HOA
-
Association
YES
-
Association Fee
$815
-
Association Fee Frequency
Monthly
-
Association Fee Includes
N/A
School District
-
Elementary School
N/A
-
Middle School
N/A
-
High School
N/A
Property Features
-
Stories
2
-
Association Amenities
Pool
-
Senior Community YN
NO
-
Sewer
Other
-
Water Source
Public
Schedule a Showing
Showing scheduled successfully.
Mortgage calculator
Estimate your monthly mortgage payment, including the principal and interest, property taxes, and HOA. Adjust the values to generate a more accurate rate.
Your payment
Principal and Interest:
$
Property taxes:
$
HOA fees:
$
Total loan payment:
$
Total interest amount:
$
Location
County
Los Angeles
Elementary School
Middle School
High School
Listing Courtesy of Brian Bleak , Berkshire Hathaway HomeServices California Properties
RealHub Information is provided exclusively for consumers' personal, non-commercial use, and it may not be used for any purpose other than to identify prospective properties consumers may be interested in purchasing. All information deemed reliable but not guaranteed and should be independently verified. All properties are subject to prior sale, change or withdrawal. RealHub website owner shall not be responsible for any typographical errors, misinformation, misprints and shall be held totally harmless.

FOUNDER
LinaMirza
Call Lina today to schedule a private showing.

* Listings on this website come from the FMLS IDX Compilation and may be held by brokerage firms other than the owner of this website. The listing brokerage is identified in any listing details. Information is deemed reliable but is not guaranteed. If you believe any FMLS listing contains material that infringes your copyrighted work please click here to review our DMCA policy and learn how to submit a takedown request.© 2024 FMLS.
