Property
Beds
2
Full Baths
1
1/2 Baths
None
3/4 Baths
1
Year Built
1974
Sq.Footage
1,440
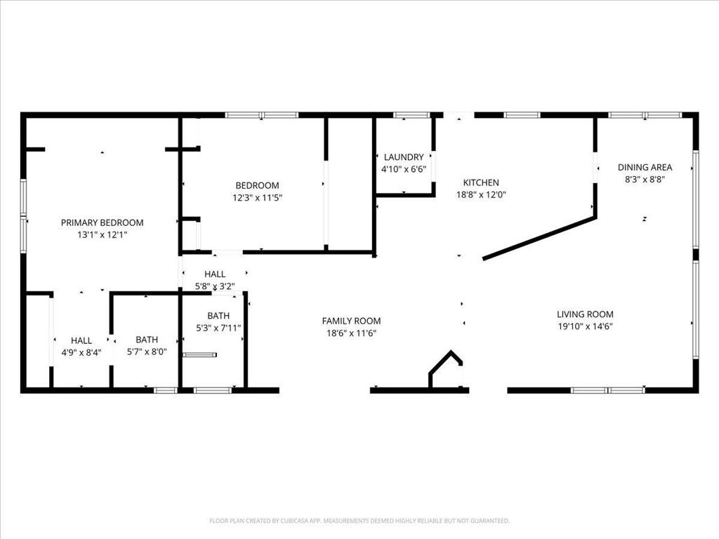
Exciting Opportunity to own on the Green Belt with spectacular views of not only the green belt, but of the golf course and mountains! The curb appeal is delightful with artificial grass decorated with bronze statues. The spacious patio features a BBQ and lounging areas to enjoy the view. Upon entering the living, dining, and family room area the views jump out to you from the walls of dual pane windows. This upgraded home has drywall with an open floor plan tastefully furnished throughout. The kitchen has lots of storage with the upgraded kitchen cabinets. The large master suite located in the rear of the home provides a quiet retreat with a dressing area. The guest bathroom has a large Walk-in shower. This home is on tags for possible tax savings.
Features & Amenities
Interior
-
Total Bedrooms
2
-
Bathrooms
1
-
3/4 Bathrooms
1
-
Cooling YN
YES
-
Cooling
Central Air
-
Heating YN
YES
-
Heating
Forced Air
-
Pet friendly
N/A
Exterior
-
Garage
No
-
Parking
Attached Carport
-
Pool
No
-
View
Park/Greenbelt, Golf Course, Mountain(s)
Area & Lot
-
Lot Features
Greenbelt, Landscaped
-
Lot Size(acres)
0.11
-
Property Type
Manufactured In Park
Price
-
Sales Price
$398,000
-
Sq. Footage
1, 440
-
Price/SqFt
$276
HOA
-
Association
YES
-
Association Fee
$400
-
Association Fee Frequency
Monthly
-
Association Fee Includes
N/A
School District
-
Elementary School
N/A
-
Middle School
N/A
-
High School
N/A
Property Features
-
Stories
1
-
Association Amenities
Billiard Room, Clubhouse, Fitness Center, Golf Course, Barbecue, Other, Recreation Room, Sauna, Tennis Court(s)
-
Foundation Details
Pillar/Post/Pier
-
Senior Community YN
YES
Schedule a Showing
Showing scheduled successfully.
Mortgage calculator
Estimate your monthly mortgage payment, including the principal and interest, property taxes, and HOA. Adjust the values to generate a more accurate rate.
Your payment
Principal and Interest:
$
Property taxes:
$
HOA fees:
$
Total loan payment:
$
Total interest amount:
$
Location
County
Riverside
Elementary School
Middle School
High School
Listing Courtesy of Lola Breeze , Lola Breeze, Broker
RealHub Information is provided exclusively for consumers' personal, non-commercial use, and it may not be used for any purpose other than to identify prospective properties consumers may be interested in purchasing. All information deemed reliable but not guaranteed and should be independently verified. All properties are subject to prior sale, change or withdrawal. RealHub website owner shall not be responsible for any typographical errors, misinformation, misprints and shall be held totally harmless.

FOUNDER
LinaMirza
Call Lina today to schedule a private showing.

* Listings on this website come from the FMLS IDX Compilation and may be held by brokerage firms other than the owner of this website. The listing brokerage is identified in any listing details. Information is deemed reliable but is not guaranteed. If you believe any FMLS listing contains material that infringes your copyrighted work please click here to review our DMCA policy and learn how to submit a takedown request.© 2024 FMLS.
