80884 Calle Azul
La Quinta , CA 92253
MLS#: 219136270DA
$719,000

Property
Beds
3
Full Baths
2
1/2 Baths
1
Year Built
2005
Sq.Footage
1,734
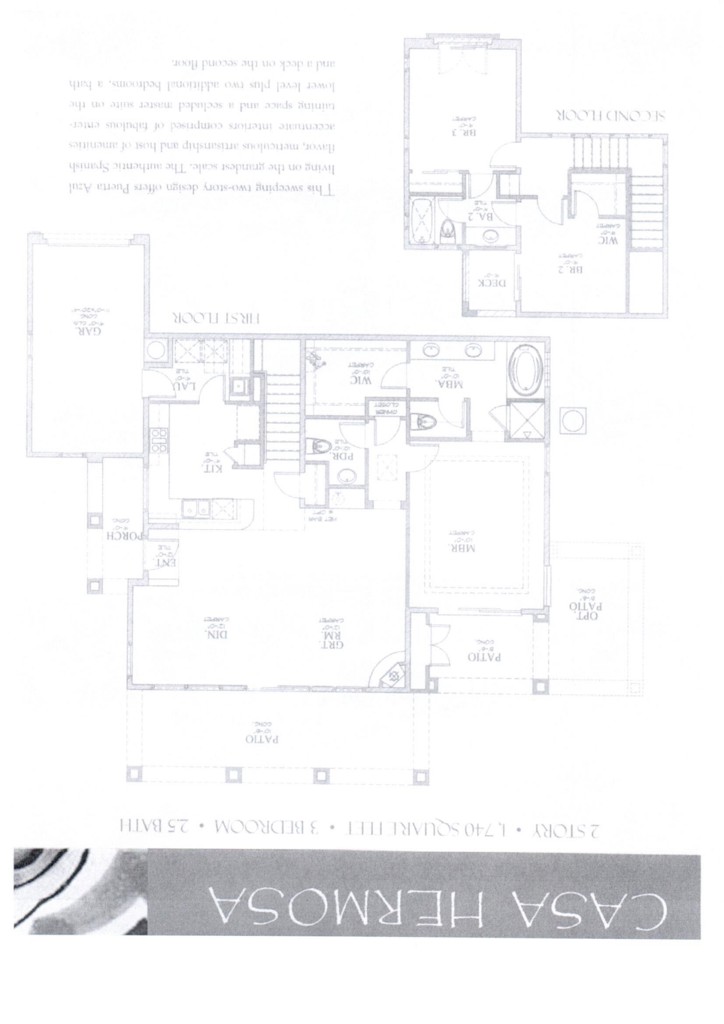
Designer Showcase Home. Completely remodeled ($100K+) over the past five years. Includes all new gourmet kitchen with custom cabinetry, quartz waterfall countertop, and new appliances. The great room design boasts raised 12-foot ceilings, archways, decorative linen panels, a luxury wallpapered accent wall, custom lighting, and a tiled fireplace. Abundant windows provide natural lighting and views of lush landscaping. The owner's suite is on the main level. It has 10' coffered ceilings, an oversized sliding glass door with scenic views. An archway leads into the ensuite bathroom with beautiful porcelain tiled flooring and walls, custom floating and back lite cabinetry, dual sinks, a free-standing soaking tub and tiled glass-encased shower. An additional archway leads into the walk-in closet with custom cabinetry. The main floor powder room includes designer floor tiles and a custom floating cabinet with sink. Upstairs, there are two spacious rooms, each with sliding glass doors and amazing views, new carpet, and a Jack & Jill bathroom concept featuring custom cabinets, a tiled floor, and tiled shower. Scenic mountain views from the backyard, two covered patios with fans for expanded outdoor living, and custom landscaping that provides privacy, and features artificial turf and Canary Island palm trees. Additional updates include custom laundry cabinets and LG stacked washer/dryer, exterior painting, new energy-efficient HVAC system, new water heater, Simple Safe security system, and custom storage racks in the garage. Puerta Azul is an enchanting gated community of only 127 homes, neighboring PGA West, with outstanding amenities that include two large pools, a clubhouse, a fitness center, and a tennis court. This exceptional property is perfect for either seasonal ownership or as an investment property.
Features & Amenities
Interior
-
Other Interior Features
Breakfast Bar, Coffered Ceiling(s), High Ceilings, Open Floorplan, Walk-In Closet(s), Master Downstairs
-
Total Bedrooms
3
-
Bathrooms
2
-
1/2 Bathrooms
1
-
Cooling YN
YES
-
Cooling
Central Air, Heat Pump
-
Fireplace YN
YES
-
Heating YN
YES
-
Heating
Central, Electric, Heat Pump, Natural Gas
-
Pet friendly
N/A
Exterior
-
Garage
Yes
-
Garage spaces
1
-
Construction Materials
Stucco
-
Parking
Attached, Guest, Shared Driveway, Unassigned
-
Patio and Porch Features
Covered
-
Pool
No
-
View
Mountain(s)
Area & Lot
-
Lot Features
Back Yard, Landscaped, Level
-
Lot Size(acres)
0.09
-
Property Type
Residential
-
Property Sub Type
Single Family Residence
Price
-
Sales Price
$719,000
-
Sq. Footage
1, 734
-
Price/SqFt
$414
HOA
-
Association
YES
-
Association Fee
$405
-
Association Fee Frequency
Monthly
-
Association Fee Includes
N/A
School District
-
Elementary School
N/A
-
Middle School
N/A
-
High School
N/A
Property Features
-
Stories
2
-
Association Amenities
Billiard Room, Clubhouse, Fitness Center, Maintenance Grounds, Management, Barbecue, Security, Tennis Court(s)
-
Foundation Details
Slab
-
Senior Community YN
NO
Schedule a Showing
Showing scheduled successfully.
Mortgage calculator
Estimate your monthly mortgage payment, including the principal and interest, property taxes, and HOA. Adjust the values to generate a more accurate rate.
Your payment
Principal and Interest:
$
Property taxes:
$
HOA fees:
$
Total loan payment:
$
Total interest amount:
$
Location
County
Riverside
Elementary School
Middle School
High School
Listing Courtesy of Diana Bernardi , Berkshire Hathaway HomeServices California Properties
RealHub Information is provided exclusively for consumers' personal, non-commercial use, and it may not be used for any purpose other than to identify prospective properties consumers may be interested in purchasing. All information deemed reliable but not guaranteed and should be independently verified. All properties are subject to prior sale, change or withdrawal. RealHub website owner shall not be responsible for any typographical errors, misinformation, misprints and shall be held totally harmless.

FOUNDER
LinaMirza
Call Lina today to schedule a private showing.

* Listings on this website come from the FMLS IDX Compilation and may be held by brokerage firms other than the owner of this website. The listing brokerage is identified in any listing details. Information is deemed reliable but is not guaranteed. If you believe any FMLS listing contains material that infringes your copyrighted work please click here to review our DMCA policy and learn how to submit a takedown request.© 2024 FMLS.
